

Kreis-Sparkasse Northeim
Frau Nicole Cleve
055 ···
Nr. anzeigenPreise & Kosten
Provision für Käufer
provisionsfrei
Lage
Luftkurort im Harz mit Bergbaugeschichte!
Natur geniessen und Geschichte im Harz entdecken - Die höchstgelegene Bergstadt des Harzes ist bekannt für ihre Bergbautradition, ihre bunten Bergwiesen und erholsamen Urlaub mitten in den Bergen.
Eine unvergleichliche Besonderheit ist die Bergbaugeschichte, die Teil des...
Die Wohnung
Wohnungslage
Erdgeschoss
Wohnanlage
Energie & Heizung
Warum sehe ich diese Anzeige? – Du siehst diese Anzeige basierend auf Ihrer Navigation auf unserer Website und den Suchkriterien, die du verwendet hast.
Energieausweis: für diesen Gebäudetyp nicht notwendig
Weitere Energiedaten
Heizungsart
Fußbodenheizung, Luft-/Wasser-Wärmepumpe
Details
Objektbeschreibung
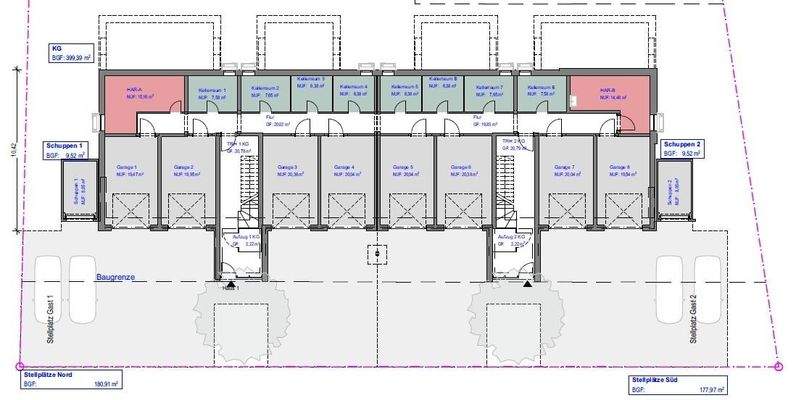
In St. Andreasberg wird aktuell ein Neubau mit 8 Eigentumswohnungen in Form eines Doppelhauses mit je 4 Wohneinheiten im KFW-55-Standard errichtet. Zu jeder Wohnung gehört eine Garage und ein Kellerraum.
Die Wohnungen sind barrierefrei und über eine Personenbeförderungsplattform in beiden Treppenhäusern erreichbar.
Die...
Ausstattung
Individuelle Ausstattungsmerkmale:
- dreifachverglaste Fenster
- SAT-TV
- Infrarotsauna
- elektrische Rolläden
Jede Wohnung wird mit einem Lüftungsgerät mit Lüftungsqualitätssensor ausgestattet. Diese werden Platz sparend in der Außenwand installiert und sorgen für eine kontrollierte Be- und...
Preisinformation
1 Garagenstellplatz, Kaufpreis: 25.000,00 EUR
Weitere Informationen
Sonstiges
- Eine Garage kostet 25.000€ und kann individuell dazu erworben werden.
- Die Wohnungen werden komplett als Ferienwohnungen eingerichtet u.a. mit einer Infrarotsauna.
VERBRAUCHERINFO
1. Maklerleistung ist der Nachweis der Gelegenheit zum Abschluss eines Vertrages bzw. Vermittlung eines Vertrages über...
Anbieter der Immobilie

Online-ID: 2hytl58
Referenznummer: 4093-02
Finde Angebote wie dieses
Hier geht es zu unserem Impressum, den Allgemeinen Geschäftsbedingungen, den Hinweisen zum Datenschutz und nutzungsbasierter Online-Werbung.