
STRATEGIS AG
Frau Heike Pippow
+49 ···
Nr. anzeigenDieses Angebot ist Teil des Neubauprojekts
MIOS - Am Bucher Forst in Pankow
Preise & Kosten
Provision für Käufer
provisionsfrei
Lage
Eingebettet in das denkmalgeschützte Ludwig Hoffmann Quartier bieten die Wohnungen im Neubauquartier MIOS den perfekten Rückzugsort vom städtischen Trubel. In direkter Nachbarschaft beginnt der weitläufige Bucher Forst, der den Ortsteil umschließt. An der nördlichen Grenze des Waldes liegen die ehemaligen Felder, auf denen...
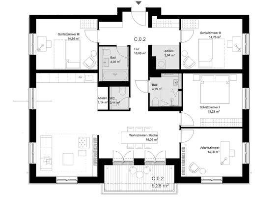
Die Wohnung
Wohnungslage
Erdgeschoss
Wohnanlage
Das Neubauprojekt
Energie & Heizung
Warum sehe ich diese Anzeige? – Du siehst diese Anzeige basierend auf Ihrer Navigation auf unserer Website und den Suchkriterien, die du verwendet hast.
Energieausweistyp
Bedarfsausweis
Gebäudetyp
Wohngebäude
Wesentliche Energieträger
Fernwärme
Gültigkeit
27.02.2024 bis 27.02.2034
Effizienzklasse
B
Endenergiebedarf
70,00 kWh/(m²·a)
Weitere Energiedaten
Energieträger
Fernwärme
Heizungsart
Fußbodenheizung
Details
Objektbeschreibung
Im Pankower Ortsteil Buch ist ein ganz besonderes kleines Neubauquartier entstanden. Nur wenige Meter vom ausgedehnten Waldgebiet Bucher Forst entfernt und in direkter Nachbarschaft zum denkmalgeschützten Ludwig Hoffmann Quartier stehen noch verschiedene Wohnungsgrößen mit repräsentativen 3 bis 5 Zimmern und exklusiver...
Ausstattung
Neben der repräsentativen Architektur bietet das neue Wohnquartier eine außergewöhnliche Ausstattung. Rund 3 Meter hohe Zimmer mit extragroßen Holzfenstern sorgen ebenso wie hohe Türen und Dielenböden aus Eiche für ein sehr großzügiges und lichtdurchflutetes Wohnen. Es stehen extragroße Kellerräume mit rund 15 bis 40...
Weitere Informationen
Sonstiges
strategis.de - https://strategis.de/
Landingpage - https://crm.propstack.de/preview/properties/1911361/lp
Stichworte
Bundesland: Berlin, Wohnungsnr.: WE32
Dokumente
Anbieter der Immobilie
STRATEGIS AG
Leipziger Straße 51, 10117 Berlin
Online-ID: 2hyyj5f
Referenznummer: MIOS C.0.2
Finde Angebote wie dieses
Hier geht es zu unserem Impressum, den Allgemeinen Geschäftsbedingungen, den Hinweisen zum Datenschutz und nutzungsbasierter Online-Werbung.