
Müller & Bucher Immobilien-Treuhand GmbH
Herr Thomas Bucher
071 ···
Nr. anzeigenPreise & Kosten
Provision für Käufer
4 % aus beurkundetem Kaufpreis zuzüglich gesetzlicher Mehrwertsteuer
Lage
Schwaigern liegt im westlichen Landkreis der wirtschaftsstarken Region Heilbronn-Franken und bietet eine hervorragende Verkehrsanbindung, unter anderem an die Autobahnen A6 und A81.
Das Renditeobjekt
Kategorie
Produktionshalle
Bezug
Nach Vereinbarung
Details
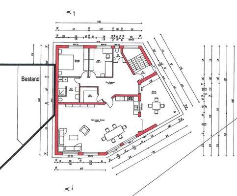
Objektbeschreibung
Diese vielseitig nutzbare Gewerbeimmobilie in bester Lage von Schwaigern bietet Ihnen eine exzellente Gelegenheit, in eine renditestarke Kapitalanlage zu investieren oder dieses attraktive Objekt selbst zu bewirtschaften oder zu beziehen. Mit einer Gesamthallenfläche von ca. 2.300m², aufgeteilt auf verschiedene Hallengrößen...
Weitere Informationen
Besichtigungstermine
Nur nach vorheriger Terminabsprache.
Dokumente
Anbieter der Immobilie
Müller & Bucher Immobilien-Treuhand GmbH
Moltkestr 10, 74072 Heilbronn
Online-ID: 2hzra59
Referenznummer: 032/31
Finde Angebote wie dieses
Hier geht es zu unserem Impressum, den Allgemeinen Geschäftsbedingungen, den Hinweisen zum Datenschutz und nutzungsbasierter Online-Werbung.