
Regger Immobilien Hermann Regger e.U.
Herr/Frau Hermann Regger
047 ···
Nr. anzeigenPreise & Kosten
Kaution
5 Bruttomonatsmieten
Provision für Mieter
3 Bruttomonatsmieten zzgl. 20 % Umsatzsteuer
Warum sehe ich diese Anzeige? – Du siehst diese Anzeige basierend auf Ihrer Navigation auf unserer Website und den Suchkriterien, die du verwendet hast.
Lage
Villach:
Villach verführt... Altstadt & Flair - Südländisches Temperament und kärntnerische Lebensfreude, historisch geprägt und klimatisch bevorzugt, romantisch, modern, lässig und fröhlich: Villach zaubert ein Lächeln auf Ihre Lippen. Villach macht Stimmung... Kult & Kilt - Weltoffen und traditionsbewusst...
Büro-/Praxisfläche
Kategorie
Praxis
Baujahr
1998
Bezug
nach Vereinbarung!-
Geschoss
1. Geschoss
Energie & Heizung
Warum sehe ich diese Anzeige? – Du siehst diese Anzeige basierend auf Ihrer Navigation auf unserer Website und den Suchkriterien, die du verwendet hast.
Heizwärmebedarf (HWB)
51,00 kWh/(m²·a)
Gesamtenergieeffizienz (fGEE)
0,68
Weitere Energiedaten
Energieträger
Fernwärme
Details
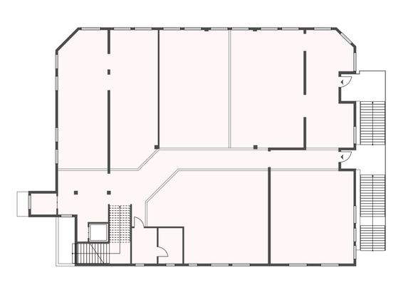
Objektbeschreibung
Bei Anmietung der gesamten Fläche des Ärztezentrums in der Größe von 790 m² kann die gesamte Raumkonfiguration im Obergeschoss auf Basis der gegebenen Möglichkeiten nach Ihrem Wunsch hergestellt werden. Ob als Gruppenpraxis, Primär-Versorgungseinrichtung oder geräumige Ordination für Sie alleine - hier sind viele...
Preisinformation
Nettokaltmiete: 12.579,20 EUR
Weitere Informationen
Stichworte
Stellplatz vorhanden, Nutzfläche: 790,00 m², Bundesland: Kärnten, modernisiert: 2024
Anbieter der Immobilie
Regger Immobilien Hermann Regger e.U.
Bernhardtgasse 3, 9800 Spittal an der Drau
Online-ID: 2j22q5k
Referenznummer: OBGC20250305133656526fe62d649ab
Finde Angebote wie dieses
Hier geht es zu unserem Impressum, den Allgemeinen Geschäftsbedingungen, den Hinweisen zum Datenschutz und nutzungsbasierter Online-Werbung.