
Immobilienbüro Hochmann
Herr Berndt Hochmann
(07 ···
Nr. anzeigenPreise & Kosten
Provision für Käufer
provisionsfrei
Lage
Bergstrasse 9, 88250 Weingarten
Ca. 5 Gehminuten auf den Löwenplatz ins Zentrum.
Wohnanlage
Energie & Heizung
Warum sehe ich diese Anzeige? – Du siehst diese Anzeige basierend auf Ihrer Navigation auf unserer Website und den Suchkriterien, die du verwendet hast.
Weitere Energiedaten
Energieträger
Gas
Heizungsart
Zentralheizung
Details
Objektbeschreibung
BAUVORANKÜNDIGUNG:
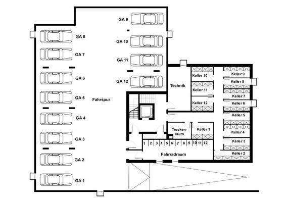
In beliebter Stadtlage entsteht hier ein projektierter Neubau, im KfW 55 Standard, mit insgesamt 12 Wohnungen ( 2,3,4-Zimmer ) und 12 Stellplätzen in der Tiefgarage, mit Wohnflächen von ca. 39 m² bis ca. 97 m².
Der Baubeginn wird, nach Erteilung der Baugenehmigung und eine Verkaufsstand von...
Ausstattung
Fordern Sie unser ausführliche Baubeschreibung per Mail an.
Hier einige Features:
* Luft-Wärme Pumpe ( Strom betrieben )
* PV Anlage für Allgemeinstrom und Heizung
* 3-fach Kunstoffenster Verglasung
* ebenerdige Duschen
* Aufzugsanlage
* die DG Wohnungen können Kamin- oder Schwedenofen...
Preisinformation
1 Tiefgaragenstellplatz
Weitere Informationen
Sonstiges
Baujahr: 2026
Heizungsart: Zentralheizung
Befeuerung/Energieträger: Gas
Stichworte
Stellplatz vorhanden
Anbieter der Immobilie

Immobilienbüro Hochmann
Online-ID: 2j24r5s
Referenznummer: 4299
Finde Angebote wie dieses
Hier geht es zu unserem Impressum, den Allgemeinen Geschäftsbedingungen, den Hinweisen zum Datenschutz und nutzungsbasierter Online-Werbung.