Version: 8.24.0Navigation überspringen
214.000 €
2 Zimmer  •  50,7 m²  •  EG
Immowelt logo

Wohnung zum Kauf
214000 €
4.223 €/m²
2 Zimmer  •  50,7 m²  •  EG

2-Zimmer-Neubauwohnung im Obergeschoss in Ibbenbüren – Modernes Wohnen nach KfW 40 QNG Standard

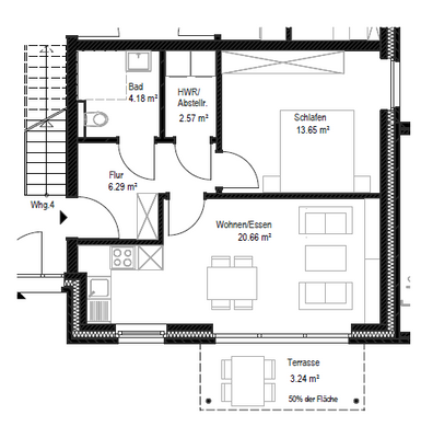
Diese moderne 2-Zimmer-Neubauwohnung im Erdgeschoss wird nach dem KfW 40 QNG Standard errichtet, was für eine besonders energieeffiziente Bauweise steht. Die Wohnung verfügt über ein gemütliches Wohnzimmer, ein Schlafzimmer, eine moderne Küche sowie ein Badezimmer mit hochwertigen Ausstattungsmerkmalen. Große Fenster sorgen für viel Tageslicht und ein angenehmes Wohngefühl. Zur Wohnung gehört eine Terrasse, der zum Entspannen im Freien einlädt. Das Gebäude ist mit einem Aufzug ausgestattet, der einen barrierefreien Zugang ermöglicht, sodass die Wohnung bequem und ohne Hindernisse erreichbar ist. Das Objekt befindet sich in einem gepflegten 10-Parteienhaus.

Merkmale

  • Bezug: 2026
  • Erdgeschoss
  • Personenaufzug
  • Stellplatz
  • Terrasse

Grundrisse

Grundrisse
1 / 1

Realisiere Dein Projekt

Bausubstanz und Energie

Der Anbieter hat keine Informationen zum Energieverbrauch bereit gestellt.
  • Baujahr2025
  • HaustypKfW 40
  • HeizungsartFußbodenheizung
  • EnergieträgerLuft-/Wasser-Wärmepumpe
Immowelt logo

Preisdetails

Kaufpreis
214000 €
4.222,57 €/m²
Provision für Käufer
2 % zzgl. gesetzlicher MwSt.
Geschätzte Gesamtkosten
236.470 €1
Kaufpreis
214.000 €
Notarkosten (1,5%)
3.210 €
Grunderwerbsteuer (6,5%)
13.910 €
Provision für Käufer (2%)
4.280 €
Grundbucheintrag (0,5%)
1.070 €
1Der angezeigte Wert ist eine automatisch berechnete Schätzung von immowelt.
2Bei den Angaben handelt es sich um ortsübliche Werte. Individuelle Kosten können abweichen.

Lage

address-icon
StadtIbbenbüren (49477)
Der Anbieter hat die genaue Adresse nicht freigegeben
Ibbenbüren ist eine lebendige Stadt im Herzen des Münsterlandes, die durch ihre attraktive Lage, gute Infrastruktur und vielfältigen Freizeitmöglichkeiten besticht. Die Wohnung befindet sich in einer ruhigen und dennoch zentralen Lage, ideal für Singles oder Paare, die komfortabel wohnen möchten.

Weitere Informationen

Vorteile der Investition Neben den attraktiven Wohnqualitäten bietet diese Immobilie die Chance auf eine steuerliche Entlastung durch die Möglichkeit einer Sonderabschreibung. Das macht die Investition besonders interessant für Kapitalanleger. Sonstiges Wenn Sie Interesse an dieser zukunftssicheren Immobilie haben oder weitere Informationen wünschen, stehe ich Ihnen gerne zur Verfügung!

Weitere Services

Lust auf eine Besichtigung?
Eine Frage zur Immobilie?
Nachricht hinzufügen
Mit der Nutzung der oben angegebenen Telefonnummer oder durch Klicken auf „Kontaktieren“ akzeptierst Du die Allgemeinen Nutzungsbedingungen, denen Du jederzeit widersprechen kannst. Weitere Informationen zum Datenschutz

Über den Anbieter

Arthur PapenheimMaklerbüro
Humboldtstraße 28, 48429 Rheine
partner badge
Partnerschaft
Arthur PapenheimDein Kontakt
Online-ID: 2j29v5q
Arthur Papenheim
Nachricht hinzufügen
Mit der Nutzung der oben angegebenen Telefonnummer oder durch Klicken auf „Kontaktieren“ akzeptierst Du die Allgemeinen Nutzungsbedingungen, denen Du jederzeit widersprechen kannst. Weitere Informationen zum Datenschutz
Wie zufrieden bist du mit dieser Seite (nicht mit der Immobilie selbst)?