
Breitwieser Roth GmbH
089 ···
Nr. anzeigenPreise & Kosten
Provision für Mieter
provisionsfrei
Warum sehe ich diese Anzeige? – Du siehst diese Anzeige basierend auf Ihrer Navigation auf unserer Website und den Suchkriterien, die du verwendet hast.
Lage
- südlich von München, entlang der A8
- S-Bahn Taufkirchen
- im nahen Umfeld findet man in einem Gewerbegebiet Bäckereien, Supermärkte, eine Drogerie sowie weitere Geschäfte für den täglichen Bedarf und ein Fitnessstudio
- gute Infrastruktur an Restaurants und Cafés in der Umgebung, ein Hotel mit Catering- und...
Büro-/Praxisfläche
Kategorie
Bürofläche
Baujahr
1992
Bezug
nach Vereinbarung
Energie & Heizung
Warum sehe ich diese Anzeige? – Du siehst diese Anzeige basierend auf Ihrer Navigation auf unserer Website und den Suchkriterien, die du verwendet hast.
Wärme
Strom
Energieausweistyp
Verbrauchsausweis
Gebäudetyp
Nicht-Wohngebäude
Gültigkeit
bis 17.02.2031
Endenergieverbrauch (Wärme)
75,00 kWh/(m²·a)
Endenergieverbrauch (Strom)
31,00 kWh/(m²·a)
Weitere Energiedaten
Heizungsart
Zentralheizung
Details
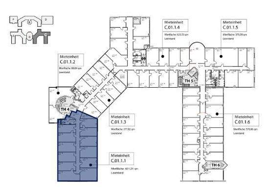
Objektbeschreibung
Kurzbeschreibung
Individuelle und moderne Büros ... Für jeden Geschmack das Richtige
Objekt
Das großzügige Areal 'SonnenHöfe' liegt zentral in Unterhaching mit guter Verkehrsanbindung an die A8. Auf dem hübsch angelegten und attraktiv begrünten Gelände befindet sich ein 4-Sterne-Hotel mit Konferenzräumen...
Ausstattung
- neuer Bodenbelag in Absprache mit dem neuen Mieter
- Deckenrasterleuchten oder Pendelleuchten
- Brüstungskabelkanäle für die IT-Verkabelung
- Glasfaseranschluss im Haus
- Duschen auf Anfrage nachrüstbar
- Personenlifts in allen Häusern
- Kühlung auf Anfrage nachrüstbar
- normale Raumhöhe, in einigen...
Weitere Informationen
Sonstiges
- Stellplätze in der Tiefgarage sowie Außenstellplätze (Mietpreis auf Anfrage)
- E-Ladestellplätze verfügbar
- ausreichend Archivflächen vorhanden (Mietpreis auf Anfrage)
- Gewerbesteuerhebesatz von 295 %
- die dargestellten Impressionen zeigen Ausbaubeispiele aus dem Gebäude
- BREEAM-Sehr...
Anbieter der Immobilie
Online-ID: 2j2r659
Referenznummer: 11556
Finde Angebote wie dieses
Hier geht es zu unserem Impressum, den Allgemeinen Geschäftsbedingungen, den Hinweisen zum Datenschutz und nutzungsbasierter Online-Werbung.