

ROKE Immobilien & Finanzdienstleistungen
Herr Kevin Duran
+49 ···
Nr. anzeigenPreise & Kosten
Provision für Käufer
7,14 % inkl. ges. MwSt.
Lage
Attraktives Baugrundstück in Elmshorner City-/Bahnhofslage:
Das angebotene Baugrundstück befindet sich in herausragender Lage von Elmshorn, unmittelbar angrenzend an den Bahnhof sowie die belebte Innenstadt mit ihrer Fußgängerzone. Diese zentrale Position bietet eine ideale Kombination aus hervorragender Verkehrsanbindung...
Das Grundstück
Details
Objektbeschreibung
Investoren & Bauträger aufgepasst!
Baugrundstück für ein Wohn- und Geschäftshaus in City-/Bahnhofslage von Elmshorn!
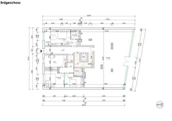
Zum Verkauf steht ein spannendes Baugrundstück mit zwei Baufenstern, eine Baugenehmigung für das Hauptbaufenster liegt bereits vor.
Es liegt eine Baugenehmigung für ein unterkellertes...
Ausstattung
- Baugrundstück für ein unterkellertes Wohn- und Geschäftshaus mit 3 Vollgeschoss und Staffelgeschoss in Citylage von Elmshorn
- Baugenehmigung vorhanden
- Zwei verschiedene Baukonzepte sind vorhanden
- Genehmigt 8 WE und 2 GE
- Konzept mit 18 WE und 1 GE möglich (Planunterlagen vorhanden)
- Kein Altbestand...
Weitere Informationen
Sonstiges
Rechtshinweis
Die Daten beruhen auf Angaben des Auftraggebers. Für die Richtigkeit kann keine Gewähr übernommen werden. Um Ihre Anfragen bearbeiten zu können, benötigen wir Ihren Namen, Ihre Adresse und Ihre Telefonnummer unter der wir Sie erreichen können.
Bitte haben Sie Verständnis dafür, dass...
Anbieter der Immobilie
ROKE Immobilien & Finanzdienstleistungen
Meßtorffstr. 21, 25436 Uetersen

Online-ID: 2j2xg5j
Referenznummer: 31
Finde Angebote wie dieses
Hier geht es zu unserem Impressum, den Allgemeinen Geschäftsbedingungen, den Hinweisen zum Datenschutz und nutzungsbasierter Online-Werbung.