
Weinhardt Immobilien
Frau Merle Fehrs
004 ···
Nr. anzeigenPreise & Kosten
Provision für Käufer
3,13 % vom Verkaufspreis inkl. MwSt.
Lage
Das Baugrundstück in Kappeln begeistert durch seine idyllische Lage direkt an der Schlei und seine Nähe zu zahlreichen Annehmlichkeiten. Hier treffen Naturverbundenheit und urbaner Komfort aufeinander - ideal für alle, die zentral und doch ruhig wohnen möchten.
Umgebung und Infrastruktur
- Einkaufsmöglichkeiten...
Das Haus
Kategorie
Einfamilienhaus
Baujahr
2025
Energie & Heizung
Warum sehe ich diese Anzeige? – Du siehst diese Anzeige basierend auf Ihrer Navigation auf unserer Website und den Suchkriterien, die du verwendet hast.
Weitere Energiedaten
Heizungsart
Fußbodenheizung, Luft-/Wasser-Wärmepumpe
Details
Objektbeschreibung
Willkommen zu einem außergewöhnlichen Grundstücksangebot in erstklassiger Lage direkt an der Schlei! Das Grundstück befindet sich in einer Sackgassenlage in Kappeln direkt an der Schleibrücke und bietet eine seltene Gelegenheit, Wohnen und Leben mit Blick auf die Schlei zu realisieren. Am Ende der Stichstraße befindet sich...
Ausstattung
Die Ausstattung auf einem Blick:
- Luft-Wasser-Wärmepumpe mit Außengerät von Viessmann
- zentrale Wohnraumlüftungsanlage von Systemair
- 5,1 kWp Photovoltaikanlage inkl. Wechselrichter und Speicher
- Starkstromanschluss für eine spätere E-Ladestation
- CAT7 Verkabelung in vier wählbaren Räumen
- zudem...
Weitere Informationen
Stichworte
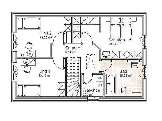
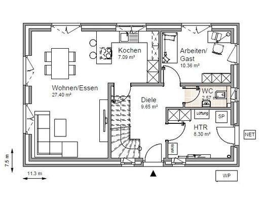
Anzahl der Schlafzimmer: 4, Anzahl der Badezimmer: 1, Anzahl der separaten WCs: 1
Anbieter der Immobilie
Online-ID: 2j3nv5k
Referenznummer: 2348_5
Finde Angebote wie dieses
Hier geht es zu unserem Impressum, den Allgemeinen Geschäftsbedingungen, den Hinweisen zum Datenschutz und nutzungsbasierter Online-Werbung.