
CUBION Immobilien AG
Herr Tiziano Sanna
+49 ···
Nr. anzeigenPreise & Kosten
Provision für Mieter
provisionsfrei
Warum sehe ich diese Anzeige? – Du siehst diese Anzeige basierend auf Ihrer Navigation auf unserer Website und den Suchkriterien, die du verwendet hast.
Lage
Fußweg zu öffentl. Verkehrsmitteln: 1 Min.
Fahrzeit zum nächsten Hauptbahnhof: 8 Min.
Fahrzeit zur BAB: 3 Min.
Fahrzeit zum nächsten Flughafen: 20 Min.
Büro-/Praxisfläche
Bezug
ab sofort
Energie & Heizung
Warum sehe ich diese Anzeige? – Du siehst diese Anzeige basierend auf Ihrer Navigation auf unserer Website und den Suchkriterien, die du verwendet hast.
Weitere Energiedaten
Energieträger
Fernwärme
Heizungsart
Zentralheizung
Details
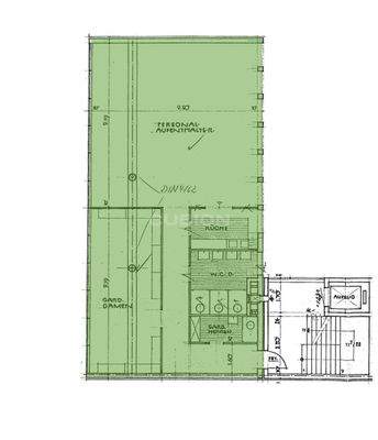
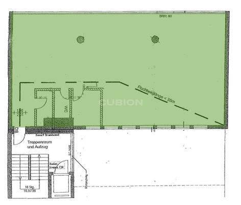
Objektbeschreibung
Dieses gepflegte Büro- und Geschäftshaus befindet sich in erstklassiger Innenstadtlage von Duisburg und bietet vielseitige Nutzungsmöglichkeiten für Unternehmen, Kanzleien oder Praxen. Die Immobilie besticht durch ihre hellen Räumlichkeiten und eine flexible Raumaufteilung - ideal für moderne Arbeitskonzepte.
Die...
Ausstattung
Bodenbelag: nach Mieterwunsch
EDV-Verkabelung: Mietersache
Kabelführung: Kabelkanäle
Kühlung: optional möglich
Küche: Anschlüsse vorinstalliert
Beleuchtung: Rasterdecken-Aufsatzleuchten
Aufzug: Personenaufzug
Weitere Informationen
Sonstiges
GEG 2020: Ein Energieausweis liegt zurzeit nicht vor.
Dieses Angebot ist provisionsfrei für den Mieter!
Alle Informationen in diesem Exposé beruhen auf Angaben, die wir vom Vermieter erhalten haben. Für Richtigkeit und Vollständigkeit übernehmen wir keine Gewähr. Zwischenvermietung vorbehalten...
Anbieter der Immobilie

CUBION Immobilien AG
Akazienallee 65, 45478 Mülheim
Online-ID: 2j3rl5s
Referenznummer: 3324/G1/E3
Finde Angebote wie dieses
Hier geht es zu unserem Impressum, den Allgemeinen Geschäftsbedingungen, den Hinweisen zum Datenschutz und nutzungsbasierter Online-Werbung.