

WINTERWOLF Immobilienservice GbR
015 ···
Nr. anzeigenPreise & Kosten
Kaution
nach Vereinbarung
Provision für Mieter
provisionsfrei
Warum sehe ich diese Anzeige? – Du siehst diese Anzeige basierend auf Ihrer Navigation auf unserer Website und den Suchkriterien, die du verwendet hast.
Lage
Das Giebichensteinviertel ist ein beliebtes Wohnviertel für ältere Menschen und Familien. Doch auch junge Leute und Studierende fühlen sich hier wohl!
Die Anbindung an die Straßenbahn ist gegeben. Zusätzlich ist man mit dem Auto schnell auf der B100.
Büro-/Praxisfläche
Bezug
ab Juli 2025
Geschoss
2. Geschoss
Energie & Heizung
Warum sehe ich diese Anzeige? – Du siehst diese Anzeige basierend auf Ihrer Navigation auf unserer Website und den Suchkriterien, die du verwendet hast.
Wärme
Strom
Energieausweistyp
Verbrauchsausweis
Gebäudetyp
Nicht-Wohngebäude
Baujahr laut Energieausweis
1984
Wesentliche Energieträger
Gas
Gültigkeit
14.05.2025 bis 14.05.2035
Endenergieverbrauch (Wärme)
109,90 kWh/(m²·a)
Endenergieverbrauch (Strom)
2,40 kWh/(m²·a)
Weitere Energiedaten
Energieträger
Gas
Heizungsart
Zentralheizung
Details
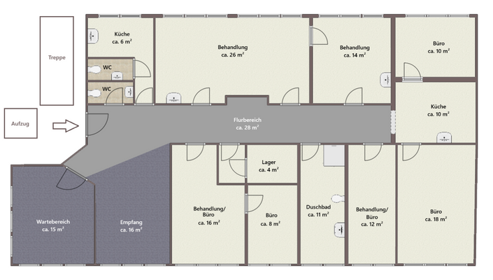
Objektbeschreibung
Die Gewerbefläche ist mit Aufzug erreichbar und eignet sich beispielsweise sehr gut als Praxisfläche.
Sie besteht aktuell aus 7 einzelnen Zimmern + Empfangsbereich und Flur. Zusätzlich gibt es 2 WCs und ein Duschbad. Da es sich um Trockenbauwände handelt, können Sie den Grundriss Ihren Wünschen entsprechend...
Weitere Informationen
Stichworte
Serviceleistungen: Hausmeister
Dokumente
Anbieter der Immobilie
Online-ID: 2j3xq5j
Referenznummer: Kur14-2OG
Finde Angebote wie dieses
Hier geht es zu unserem Impressum, den Allgemeinen Geschäftsbedingungen, den Hinweisen zum Datenschutz und nutzungsbasierter Online-Werbung.