
Philipp Finanz GmbH
Herr Philipp
017 ···
Nr. anzeigenPreise & Kosten
Provision für Käufer
3,00% zzgl. MwSt. vom Kaufpreis
Lage
Das Einfamilienhaus befindet sich in einer ruhigen und familienfreundlichen Wohngegend in Brehna. Die Infrastruktur ist hervorragend: Einkaufsmöglichkeiten, Schulen und Kindergärten sind schnell innerhalb weniger Minuten erreichbar. Zudem erreichen Sie die nahe Autobahnanbindung A9 in nur 6 Minuten, welche Ihnen eine schnelle...
Das Haus
Kategorie
Bungalow
Baujahr
2023
Energie & Heizung
Warum sehe ich diese Anzeige? – Du siehst diese Anzeige basierend auf Ihrer Navigation auf unserer Website und den Suchkriterien, die du verwendet hast.
Energieausweistyp
Bedarfsausweis
Gebäudetyp
Wohngebäude
Baujahr laut Energieausweis
2023
Wesentliche Energieträger
Strom-Mix
Gültigkeit
bis 26.03.2034
Effizienzklasse
A
Endenergiebedarf
30,00 kWh/(m²·a)
Weitere Energiedaten
Haustyp
KfW 55
Heizungsart
Fußbodenheizung, Luft-/Wasser-Wärmepumpe
Details
Objektbeschreibung
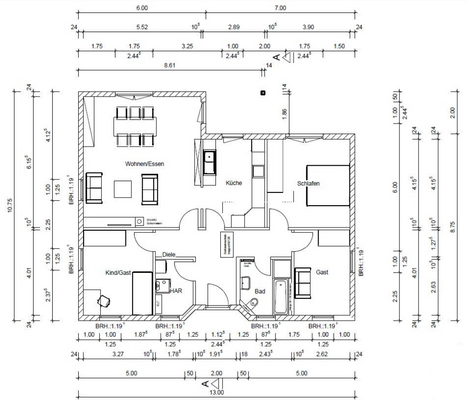
Dieser moderne Bungalow aus dem Baujahr 2023 besticht durch seine hochwertige Ausstattung, energieeffiziente Bauweise und durchdachte Raumaufteilung. Auf einer Wohnfläche von rund 103 m² erwartet Sie ein stilvolles Zuhause. Das 687 m² große Grundstück ist komplett eingefriedet.
Ausstattung
• Energieeffizienz: Hochwertige Dämmung (KfW 55-Standard)
• Heizung: Effiziente L/W-Wärmepumpe von Daikin
• Fußbodenheizung: Im gesamten Haus
• Fenster: 3-fach verglaste Doppelfenster mit elektr. Rollläden
• Photovoltaikanlage: ca. 5 kWp (12 Module) zur Energieeinsparung
• Bodenbeläge: Pflegeleichtes &...
Weitere Informationen
Der genaue Einzugstermin für das Einfamilienhaus ist mit dem Verkäufer abzuklären. Alle Angaben sind ohne Gewähr und basieren auf Informationen, die uns von unserem Auftraggeber zur Verfügung gestellt wurden. Wir übernehmen keine Gewähr für die Vollständigkeit, Richtigkeit und Aktualität dieser Angaben. Irrtum und...
Anbieter der Immobilie
Philipp Finanz GmbH
Hospitalstr. 14, 04758 Oschatz
Online-ID: 2j3zk52
Finde Angebote wie dieses
Hier geht es zu unserem Impressum, den Allgemeinen Geschäftsbedingungen, den Hinweisen zum Datenschutz und nutzungsbasierter Online-Werbung.