
msi Mike Schneider Immobilien GmbH
Herr Dominic Raschel
004 ···
Nr. anzeigenPreise & Kosten
Kaution
5.250,00
Provision für Mieter
1,19MM inkl. MwSt.
Warum sehe ich diese Anzeige? – Du siehst diese Anzeige basierend auf Ihrer Navigation auf unserer Website und den Suchkriterien, die du verwendet hast.
Lage
Diese Räumlichkeiten befinden sich in guter, auffälliger Lage, direkt in Alsfeld. Der Stadtkern der schönen historischen Fachwerkstadt Alsfeld ist nur wenige Gehminuten entfernt. Einkaufsmöglichkeiten, Schulen und Kindergarten sind in unmittelbarer Nähe. Bahn- und Autobahn-Anschluss an die A 5 Frankfurt-Kassel, welcher zwei...
Die Industriefläche
Kategorie
Lagerhalle
Baujahr
1968
Geschosse
1 Geschoss
Energie & Heizung
Warum sehe ich diese Anzeige? – Du siehst diese Anzeige basierend auf Ihrer Navigation auf unserer Website und den Suchkriterien, die du verwendet hast.
Weitere Energiedaten
Energieträger
Gas
Heizungsart
Zentralheizung
Details
Objektbeschreibung
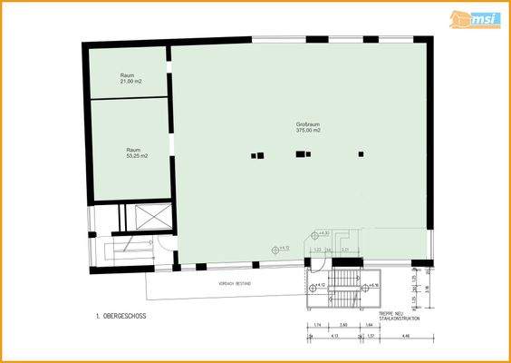
Auf ca. 449 m² Gesamtfläche erstreckt sich dieses Gewerbeangebot im 1. Obergeschoss der Alten Molkerei in Alsfeld. Hier steht Ihnen ein großer Verkaufsraum und zwei Lagerräume zur Verfügung. Die Aufteilung und Gestaltung kann individuell durch den Mieter erfolgen. Ein Gemeinschaft-WC steht Ihnen hier ebenfalls zur Verfügung...
Ausstattung
Die Räume werden mit einer Gaszentralheizung(2019) beheizt. Der Boden ist überwiegend mit Fliesen belegt.
Weitere Informationen
Stichworte
Nutzfläche: 449,00 m²
Anbieter der Immobilie

msi Mike Schneider Immobilien GmbH
Online-ID: 2j3zv5g
Referenznummer: 4126
Finde Angebote wie dieses
Hier geht es zu unserem Impressum, den Allgemeinen Geschäftsbedingungen, den Hinweisen zum Datenschutz und nutzungsbasierter Online-Werbung.