
Nürminger Immo und Konzept GmbH
098 ···
Nr. anzeigenPreise & Kosten
Provision für Käufer
provisionsfrei
Das Haus
Kategorie
Einfamilienhaus
Geschosse
3 Geschosse
Energie & Heizung
Warum sehe ich diese Anzeige? – Du siehst diese Anzeige basierend auf Ihrer Navigation auf unserer Website und den Suchkriterien, die du verwendet hast.
Weitere Energiedaten
Haustyp
KfW 70, Massivhaus
Energieträger
Fernwärme
Details
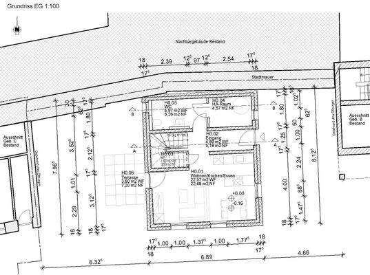
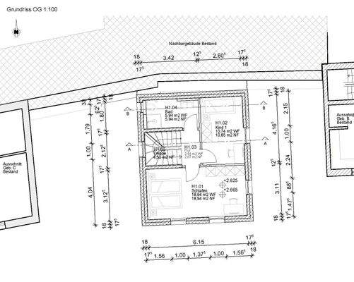
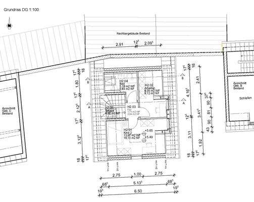
Objektbeschreibung
Im Rahmen einer privaten Stadtentwicklung werden in der Bierstadt Spalt insgesamt sechs Innenstadthäuser einer neuen Nutzung zugeführt und ein Neubau erstellt. Das bisher eher beengte und zugepflasterte Areal ohne Parkmöglichkeiten wird durch eine behutsame Überplanung mit Abriss unnötiger nicht mehr genutzter Nebengebäude...
Anbieter der Immobilie
Online-ID: 2j44b5m
Finde Angebote wie dieses
Hier geht es zu unserem Impressum, den Allgemeinen Geschäftsbedingungen, den Hinweisen zum Datenschutz und nutzungsbasierter Online-Werbung.