

Kreis-Sparkasse Northeim
Herr Dennis Friedrichs
055 ···
Nr. anzeigenPreise & Kosten
Provision für Käufer
provisionsfrei
Lage
Im Süden des Landkreises zwischen Northeim und der Universitätsstadt Göttingen befindet sich Nörten-Hardenberg. Der Flecken mit seinen rund 8.200 Einwohnern ist in dreierlei Hinsicht in vieler Munde: Durch eine weithin bekannte Kornbrennerei, einen der führenden Fruchtsafthersteller Deutschlands und durch hochklassigen...
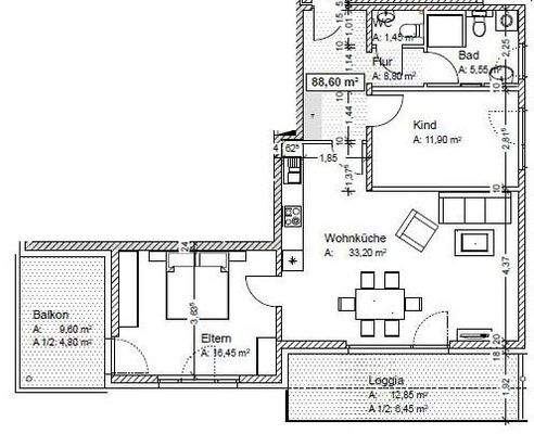
Die Wohnung
Wohnanlage
Energie & Heizung
Warum sehe ich diese Anzeige? – Du siehst diese Anzeige basierend auf Ihrer Navigation auf unserer Website und den Suchkriterien, die du verwendet hast.
Energieausweis: für diesen Gebäudetyp nicht notwendig
Weitere Energiedaten
Heizungsart
Fußbodenheizung, Luft-/Wasser-Wärmepumpe
Details
Objektbeschreibung
In guter Lage, nur wenige Gehminuten vom Zentrum Nörten-Hardenbergs, entsteht im letzten Bauabschnitt des Neubaugebietes "Leineblick" ein Mehrfamilienwohnhaus mit 9 Wohneinheiten. Durch vielfältige Wohnungsgrößen zwischen 62 m² und 96 m² (2 bis 3 Zimmerwohnungen) bieten sich viele Möglichkeiten, die Räume nach individuellen...
Ausstattung
Individuelle Ausstattungsmerkmale:
- elektrische Rolläden
- Barrierefreiheit: Breite, rollstuhlgeeignete Türen , niedrige Schwellen zu den Balkonen u. Terrassen, ebenerdige Duschen, automatischer Türöffner an der Hauseingangstür
- hochwertiges Vollholz-Eichenparkett in den Wohnräumen
-...
Weitere Informationen
Sonstiges
VERBRAUCHERINFO
1. Maklerleistung ist der Nachweis der Gelegenheit zum Abschluss eines Vertrages bzw. Vermittlung eines Vertrages über eine Immobilie gegen die Courtagezahlungspflicht des Kunden
2. Unternehmer,Anschrift,Beschwerdeadressat
LBSi NordWest, Himmelreichallee 40, 48149 Münster...
Anbieter der Immobilie

Online-ID: 2j49z5t
Referenznummer: 4041-6
Finde Angebote wie dieses
Weitere Immobilien
Hier geht es zu unserem Impressum, den Allgemeinen Geschäftsbedingungen, den Hinweisen zum Datenschutz und nutzungsbasierter Online-Werbung.