

Spain Homes
Herr Santiago de Cordoba Estepa
+34 ···
Nr. anzeigenPreise & Kosten
Provision für Käufer
Bitte beachte, das Angebot kann bei Vertragsabschluss die Zahlung einer Provision beinhalten. Weitere Informationen erhältst Du vom Anbieter.
Die Immobilie
Zu diesem Angebot wurden vom Anbieter keine weiteren Daten hinterlegt. Für weitere Informationen bitte den Anbieter kontaktieren.
Nach Informationen fragenDetails
Objektbeschreibung
Kurzbeschreibung
Die Grundstücke befinden sich in einer begehrten Lage in Estepona, Málaga. Sie liegen in der Nähe des Strandes und des Stadtzentrums. Die Grundstücke mit Baulizenz eignen sich für den Villenbau.
Objekt
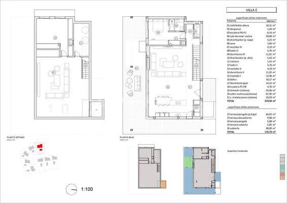
Grundstücke mit Villenbaulizenzen in Strandnähe in Estepona
Das Projekt bietet 8 städtische...
Weitere Informationen
Stichworte
Wohnfläche: 801,00 m², Nutzfläche: 801,00 m², Bundesland: Estepona, 3 Etagen
Anbieter der Immobilie
Spain Homes
C/El Montículo 8, Benalmádena, 29631 MÁLAGA

Online-ID: 2j4bx5m
Referenznummer: AGP-0894-0-Residential
Finde Angebote wie dieses
Hier geht es zu unserem Impressum, den Allgemeinen Geschäftsbedingungen, den Hinweisen zum Datenschutz und nutzungsbasierter Online-Werbung.