
M-I Immobilien GmbH
Herr Marc Burtscher.
+43 ···
Nr. anzeigenPreise & Kosten
Kaution
3 BMM
Provision für Mieter
provisionsfrei
Warum sehe ich diese Anzeige? – Du siehst diese Anzeige basierend auf Ihrer Navigation auf unserer Website und den Suchkriterien, die du verwendet hast.
Lage
Das Gewerbeobjekt MS1 in Dornbirn verfügt über Büro- und Gewerbeflächen und ist ein optimaler Standort für kleine und mittlere Unternehmen. Es werden individuelle Raumlösungen für Büro, Handel und Service geboten. Durch seine ausgezeichnete Lage mit bester Anbindung an das Österreichische und Schweizer Autobahnnetz wird es...
Büro-/Praxisfläche
Kategorie
Bürofläche
Energie & Heizung
Warum sehe ich diese Anzeige? – Du siehst diese Anzeige basierend auf Ihrer Navigation auf unserer Website und den Suchkriterien, die du verwendet hast.
Details
Objektbeschreibung
Wir vermieten:
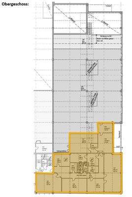
•Gewerbefläche mit ca. 213 m² im EG und ca. 359 m² im OG
•Lager / Büro / Produktion
•Raumhöhe: 2,41 / 2,87 m (EG) und 2,31 / 2,77 m (OG)
•Verfügbar ab sofort
•Mietpreis auf Anfrage
•Ausreichend Parkplätze
•Optional Außenflächen
•3 BMM Kaution
•Provisionsfrei
Dokumente
Anbieter der Immobilie
M-I Immobilien GmbH
Messestrasse 11, 6850 DORNBIRN
Online-ID: 2j4m85k
Finde Angebote wie dieses
Hier geht es zu unserem Impressum, den Allgemeinen Geschäftsbedingungen, den Hinweisen zum Datenschutz und nutzungsbasierter Online-Werbung.