
NIS Immobilien GmbH
Frau Nicole Strassmeier
004 ···
Nr. anzeigenPreise & Kosten
Provision für Käufer
3% vom Kaufpreis zzg. 20% MWST
Lage
Die angrenzende Kirschenallee mit Schulen, Fußball-/Tennisverein und einer großen Parkanlage mit Spiel- & Sportplätzen ist nur wenige Gehminuten entfernt. Ebenso die Esslinger Hauptstrasse, die nicht nur zahlreiche Möglichkeiten für Nahversorgung bietet, sondern auch den Anschluss zum öffentlichen Nahverkehr hat. Der...
Die Wohnung
Bezug
12/2025
Derzeitige Nutzung
frei
Wohnanlage
Energie & Heizung
Warum sehe ich diese Anzeige? – Du siehst diese Anzeige basierend auf Ihrer Navigation auf unserer Website und den Suchkriterien, die du verwendet hast.
Weitere Energiedaten
Heizungsart
Fußbodenheizung
Details
Objektbeschreibung
Neubau Projekt im Herzen von Wien Essling mit 19 schlüsselfertigen Eigentumswohnungen auf Eigengrund.
Die hochwertig ausgestatteten 2-4 Zimmer Wohnungen verfügen alle über einen Außenbereich – entweder Garten, Balkon, Terrasse oder Loggia.
Alle Einheiten werden schlüsselfertig verkauft und sind hochwertig...
Preisinformation
Gartenwohnungen
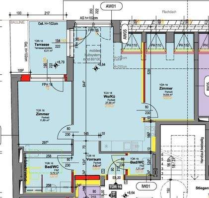
TOP 1 – 2 Zimmer, Terrasse & Garten - Gesamtfläche ca. 93,09 m²
WNFL ca. 42,05 m² (2 ZI) / Terrasse ca. 8,235 m² / GARTEN ca. 44,38 m²,
KP: € 219.000,- / VERKAUFT!!!
TOP 2 – 2 Zimmer, Terrasse & Garten - Gesamtfläche ca. 88 m²
WNFL ca. 48,02 m² / Terrasse ca. 9 m² / GARTEN ca. 32,33...
Weitere Informationen
Sonstiges
NEBENKOSTEN:
Grunderwerbsteuer: 3,5%
Vertragserrichtungskosten: 1,5 % des Kaufpreises zuzüglich 20% USt. und Barauslagen
Grundbucheintragungsgebühr: 1,1%
Maklerprovision: 3% vom Kaufpreis zzg. 20% Ust
SONSTIGES
Kein Baurecht, kein Pachtgrund - Eigengrund
Hinweis gemäß...
Dokumente
Anbieter der Immobilie
NIS Immobilien GmbH
Mühlhäufelweg 67/9, 1220 WIEN
Online-ID: 2j4ry52
Referenznummer: TOP 17
Finde Angebote wie dieses
Günstige Immobilienfinanzierung einfach online berechnen
Persönliches Angebot berechnenWarum sehe ich diese Werbung? – Du siehst diese Werbung basierend auf Deiner Navigation auf unserer Website und der von Dir verwendeten Suchkriterien.
Diese Werbung wird bezahlt von durchblicker
Werbung melden
Hier geht es zu unserem Impressum, den Allgemeinen Geschäftsbedingungen, den Hinweisen zum Datenschutz und nutzungsbasierter Online-Werbung.