Version: 8.24.1Navigation überspringen
455.000 €
15.755,6 m² Grundstück
Immowelt logo

Grundstück zum Kauf
455000 €
28,88 €/m²
15.755,6 m² Grundstück

Idyllisches Fincagrundstück mit Baulizenz in Felanitx

Dieses idyllische Grundstück befindet sich in einer ruhigen, privaten Lage in der schönen Gegend von Son Muda in Felanitx. Für die insgesamt 15.755 qm große Grundstückfläche gibt es eine ganz neu erhaltene Baugenehmigung für die Erstellung einer Finca mit 236,28 qm konstruierter Fläche.

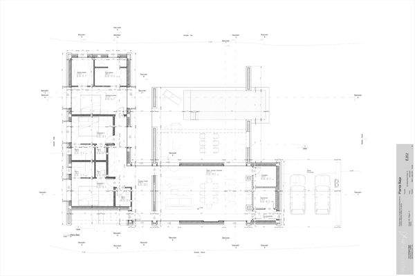
Das Projekt sieht ein zukünftiges Haus mit 3 Schlafzimmern, 3 Badezimmern, Wohn-/Esszimmer mit offener integrierter Küche, Gäste-WC, Waschraum, Maschinenraum, Garage, Abstellplatz für das Auto und Pool vor.

Die Stromversorgung wird autark über eine moderne Solaranlage erfolgen.

Merkmale

  • 15.755,6 m² Grundstück

Grundrisse

Grundrisse
1 / 8

Realisiere Dein Projekt

Bausubstanz und Energie

Möchtest du Details zum Energieverbrauch?info_energy_calculation-icon
Immowelt logo

Preisdetails

Kaufpreis
455000 €
28,88 €/m²
Provision für Käufer
Bitte beachte, das Angebot kann bei Vertragsabschluss die Zahlung einer Provision beinhalten. Weitere Informationen erhältst Du vom Anbieter.

Lage

address-icon
Felanitx (07200)
Der Anbieter hat die genaue Adresse nicht freigegeben
Felanitx liegt im Südosten Mallorcas und ist ein kleiner, gepflegter Ort mit allen Möglichkeiten des täglichen Bedarfs, netten Cafés und Restaurants.
Die Landschaft ist teils hügelig-bewaldet, teils flach und weitläufig, ideal für Ruhesuchende und Naturliebhaber.

Zum schönen Hafenstädtchen Portocolom und den romantischen Badebuchten an der Ostküste sind es ca. 15 Fahrminuten.

Weitere Informationen

Stichworte Anzahl der Schlafzimmer: 3, Anzahl der Badezimmer: 3, Bundesland: Balearische_Inseln

Weitere Services

Lust auf eine Besichtigung?
Eine Frage zur Immobilie?
Nachricht hinzufügen
Mit der Nutzung der oben angegebenen Telefonnummer oder durch Klicken auf „Kontaktieren“ akzeptierst Du die Allgemeinen Nutzungsbedingungen, denen Du jederzeit widersprechen kannst. Weitere Informationen zum Datenschutz

Über den Anbieter

Theresienstr. 81, 80333 München
partner badge
Partnerschaft
Firma Porta Mallorquina a brand of Homes & Holiday
Firma Porta Mallorquina a brand of Homes & HolidayDein Kontakt
Online-ID: 25I47P8XZ15A
Referenznummer: MAL-121820
Homes & Holiday AG
title
Homes & Holiday AG
Nachricht hinzufügen
Mit der Nutzung der oben angegebenen Telefonnummer oder durch Klicken auf „Kontaktieren“ akzeptierst Du die Allgemeinen Nutzungsbedingungen, denen Du jederzeit widersprechen kannst. Weitere Informationen zum Datenschutz
Wie zufrieden bist du mit dieser Seite (nicht mit der Immobilie selbst)?