

Küspert & Küspert Immobilienberatung
Frau Luisa Zaha Krutzki
+49 ···
Nr. anzeigenPreise & Kosten
Provision für Mieter
provisionsfrei
Warum sehe ich diese Anzeige? – Du siehst diese Anzeige basierend auf Ihrer Navigation auf unserer Website und den Suchkriterien, die du verwendet hast.
Lage
ÖPNV: U-Bahnanschluss ca. 2 Gehminuten, Bushaltestelle ca. 2 Gehminuten - nächste Autobahnanschlussstelle: A73 Kreuz Nürnberg-Hafen ca. 5 Fahrminuten - Hauptbahnhof Nürnberg ca. 6 Fahrminuten - City ca. 14 Fahrminuten - Flughafen ca. 22 Fahrminuten entfernt
Büro-/Praxisfläche
Kategorie
Praxisfläche
Energie & Heizung
Warum sehe ich diese Anzeige? – Du siehst diese Anzeige basierend auf Ihrer Navigation auf unserer Website und den Suchkriterien, die du verwendet hast.
Wärme
Strom
Energieausweistyp
Verbrauchsausweis
Gebäudetyp
Nicht-Wohngebäude
Baujahr laut Energieausweis
1938
Wesentliche Energieträger
Fernwärme
Gültigkeit
bis 30.04.2024
Endenergieverbrauch (Wärme)
120,50 kWh/(m²·a)
Endenergieverbrauch (Strom)
2,70 kWh/(m²·a)
Weitere Energiedaten
Energieträger
Fernwärme
Details
Objektbeschreibung
- Bürugebäude
- Baujahr 1983
- Aufzüge vorhanden
- behindertengerecht
- großzügiges und attraktiv gestaltetes Eingangsfoyer
- zentrales Parkhaus, Außenstellplätze
- Grünanlage zur Pausenbenutzung
Ausstattung
- Spiegelleuchten
- abgehängte Decke
- Klimatisierung nachrüstbar
- Lüftung vorhanden
- Verkabelung über Kabelkanäle
- Teppichboden, Vinylboden
- großflächige Fensterfront
- teilweise Glastüren
Weitere Informationen
Flächen
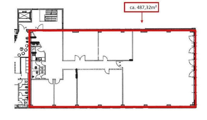
150d
Bürofläche im 2. Obergeschoss mit ca. 487,32 m²
152
Bürofläche im 1. Untergeschoss mit ca. 310,00 m²
150c
Lagerflächen im Erdgeschoss mit ca. 258,04 m²
Außenstellplätze: auf Anfrage
Miete/Monat
Büroflächen: ab 10,00 EUR/m²
Außenstellplätze: auf...
Anbieter der Immobilie

Online-ID: 2j53t5e
Referenznummer: P0349/9999/Eh3
Finde Angebote wie dieses
Hier geht es zu unserem Impressum, den Allgemeinen Geschäftsbedingungen, den Hinweisen zum Datenschutz und nutzungsbasierter Online-Werbung.