
Immobilienberatung Behrendt
Herr Tobias Behrendt
004 ···
Nr. anzeigenPreise & Kosten
Provision für Käufer
provisionsfrei
Lage
Thierbach ist ein malerischer Ortsteil der Stadt Kitzscher im Landkreis Leipzig, rund 21,5 Kilometer süd-südöstlich von Leipzig gelegen. Die ländlich geprägte Lage überzeugt durch Ruhe und Erholung, während gleichzeitig eine gute Anbindung an umliegende Städte gegeben ist.
Für den täglichen Bedarf finden sich...
Das Haus
Kategorie
Einfamilienhaus
Bezug
sofort
Energie & Heizung
Warum sehe ich diese Anzeige? – Du siehst diese Anzeige basierend auf Ihrer Navigation auf unserer Website und den Suchkriterien, die du verwendet hast.
Weitere Energiedaten
Heizungsart
Fußbodenheizung, Luft-/Wasser-Wärmepumpe
Details
Objektbeschreibung
Ihr Traumhaus - Mit ScanHaus sorgenfrei in die Zukunft
Der Bau eines Eigenheims ist eine der wichtigsten Entscheidungen im Leben. Doch wir wissen: So groß die Vorfreude ist, so viele Fragen und Unsicherheiten begleiten diesen Schritt. Wird alles nach Plan verlaufen? Bleiben die Kosten im Rahmen? Und vor allem - kann...
Ausstattung
Spektakulär und prämiert!
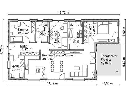
Die außergewöhnliche Deckenhöhe von mehr als 4 Metern sowohl im Wohn-/Essbereich als auch im Schlafzimmer verspricht ein herrschaftliches Wohnambiente - phänomenal! Mit knapp 49 m² Wohnfläche wurde der sehr offen gestaltete Wohn-, Ess- und Kochbereich sehr großzügig gehalten. Das barrierefreie...
Weitere Informationen
Sonstiges
Ihr Ansprechpartner:
Tobias Behrendt
Selbstständiger Handelsvertreter nach § 84 Abs. 1 HGB für ScanHaus Marlow GmbH
ScanHaus Marlow GmbH, Möritzscher Straße 22, 04435 Schkeuditz
Tel.: 0151 11 66 54 31
Mail: behrendt@scanhaus.de
Sonstiges:
ScanHaus Marlow ist nicht der Eigentümer des im...
Anbieter der Immobilie
Immobilienberatung Behrendt
Gohliser Straße 11, 04105 Leipzig
Online-ID: 2j5lu5u
Referenznummer: 408_60.3_SH147B
Finde Angebote wie dieses
Hier geht es zu unserem Impressum, den Allgemeinen Geschäftsbedingungen, den Hinweisen zum Datenschutz und nutzungsbasierter Online-Werbung.