
iad Deutschland GmbH
Frau Jana Tafipolski
004 ···
Nr. anzeigenPreise & Kosten
Kaution
nach Vereinbarung
Provision für Mieter
3 Nettokaltmieten zuzüglich Mwst. zzgl. MwSt.
Warum sehe ich diese Anzeige? – Du siehst diese Anzeige basierend auf Ihrer Navigation auf unserer Website und den Suchkriterien, die du verwendet hast.
Lage
Die Sonnenstraße zählt zu den besten Adressen im Herzen von München und verbindet den Karlsplatz Stachus mit dem Sendlinger Tor. Diese zentrale Lage bietet eine perfekte Infrastruktur und ein dynamisches Umfeld. In unmittelbarer Nähe finden sich zahlreiche Restaurants wie z. B. "Altmünchner Gesellenhaus", Cafés wie "Bohne...
Büro-/Praxisfläche
Kategorie
Bürofläche
Baujahr
1971
Bezug
ab sofort
Energie & Heizung
Warum sehe ich diese Anzeige? – Du siehst diese Anzeige basierend auf Ihrer Navigation auf unserer Website und den Suchkriterien, die du verwendet hast.
Energieausweistyp
Bedarfsausweis
Gebäudetyp
Nicht-Wohngebäude
Baujahr laut Energieausweis
1971
Wesentliche Energieträger
FERN
Endenergiebedarf
141,64 kWh/(m²·a)
Details
Objektbeschreibung
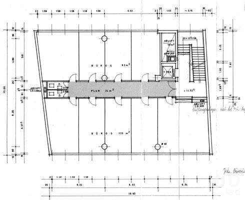
Im 3. Obergeschoss eines gepflegten Gebäudes befindet sich diese ca. 219,84 m² große Gewerbefläche mit insgesamt 6 hellen Zimmern. Fünf Räume sind als Büroarbeitsplätze gestaltet und durch eine verglaste Tür stilvoll vom großzügigen Hauptbereich abgetrennt.
Ein besonderes Highlight: Aus den Fenstern, auf der Ostseite...
Preisinformation
Nettokaltmiete: 3.737,28 EUR
Weitere Informationen
Sonstiges
An den Kunden durch uns weitergeleitete Angaben und Informationen zu Objekten liegen die uns erteilten Auskünfte des Veräußerers bzw. Vermieters zugrunde. Die I@D Deutschland GmbH hat diese Angaben nicht geprüft. Vielmehr obliegt die Prüfung der Richtigkeit und/oder Vollständigkeit der Angaben allein dem Kunden...
Anbieter der Immobilie
iad Deutschland GmbH
Schleusenstraße 15-17, 60327 Frankfurt am Main
Online-ID: 2j5ww5u
Referenznummer: iad-2245
Finde Angebote wie dieses
Hier geht es zu unserem Impressum, den Allgemeinen Geschäftsbedingungen, den Hinweisen zum Datenschutz und nutzungsbasierter Online-Werbung.