
KAVEH Immobilien GmbH & Co. KG
Herr Kasra Kaveh
004 ···
Nr. anzeigenPreise & Kosten
Provision für Käufer
provisionsfrei
Lage
Die geografische Lage von Oldenburg bietet eine Mischung aus ländlicher Schönheit und urbaner Bequemlichkeit. Die Stadt ist ein attraktiver Ort für Menschen, die eine hohe Lebensqualität in einer gut erreichbaren Region suchen, die sowohl kulturelle Angebote als auch naturnahe Erholungsmöglichkeiten bietet.
Oldenburg...
Büro-/Praxisfläche
Kategorie
Bürofläche
Baujahr
1972
Bezug
Sofort verfügbar
Geschoss
Erdgeschoss
Energie & Heizung
Warum sehe ich diese Anzeige? – Du siehst diese Anzeige basierend auf Ihrer Navigation auf unserer Website und den Suchkriterien, die du verwendet hast.
Wärme
Energieausweistyp
Verbrauchsausweis
Gebäudetyp
Nicht-Wohngebäude
Baujahr laut Energieausweis
2024
Wesentliche Energieträger
GAS
Gültigkeit
bis 12.12.2033
Endenergieverbrauch (Wärme)
151,90 kWh/(m²·a)
Weitere Energiedaten
Energieträger
Gas
Heizungsart
Zentralheizung
Details
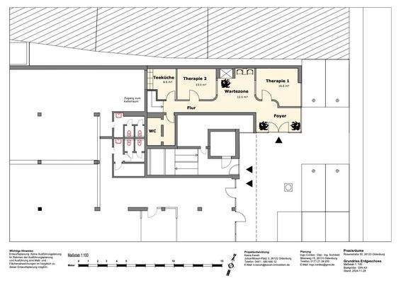
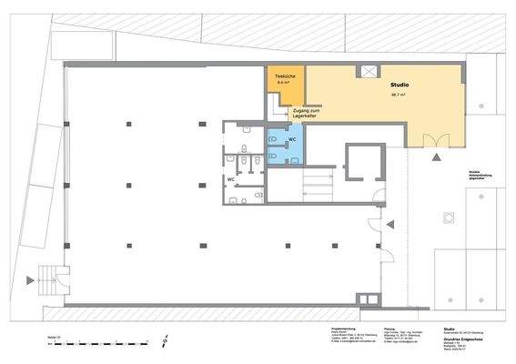
Objektbeschreibung
Tauchen Sie ein in diese ca. 110 m² große und einzigartige Gewerbeeinheit im Erdgeschoss eines Wohn- und Geschäftshauses im Oldenburger Stadtring.
Die Teilfläche einer ehemaligen Bankfiliale erstreckt sich über 110 m² und befindet sich im Erdgeschoss eines Wohn- Geschäftshauses und verfügt über einen ca. 20 m² großen...
Ausstattung
Die Heizung des Objektes wurde im Juli 2024 erneuert.
Die beigefügten Grundrisse dienen lediglich zur Vorstellung. Die Grundrisse können bei Bedarf gerne durch unseren Architekten individuell auf Ihre Wünsche und Vorstellungen gestaltet werden.
Weitere Informationen
Sonstiges
Bitte haben Sie Verständnis, dass wir nur Anfragen mit vollständig angegebenem Namen, Adresse und Telefonnummer bearbeiten können.
Sämtliche Fotos, Texte und grafische Darstellungen (Grundrisse) sind Eigentum von der Firma KAVEH Immobilien GmbH & Co. KG und dürfen nicht von Dritten verwendet oder...
Anbieter der Immobilie
KAVEH Immobilien GmbH & Co. KG
Donnerschweer Straße 79, 26123 Oldenburg
Online-ID: 2j5x35s
Referenznummer: 69 321
Finde Angebote wie dieses
Hier geht es zu unserem Impressum, den Allgemeinen Geschäftsbedingungen, den Hinweisen zum Datenschutz und nutzungsbasierter Online-Werbung.