

Spain Homes
Herr Santiago de Cordoba Estepa
+34 ···
Nr. anzeigenPreise & Kosten
Provision für Käufer
Bitte beachte, das Angebot kann bei Vertragsabschluss die Zahlung einer Provision beinhalten. Weitere Informationen erhältst Du vom Anbieter.
Die Wohnung
Kategorie
Apartment
Wohnungslage
1. Geschoss
Bezug
Spain Homes
Wohnanlage
Energie & Heizung
Warum sehe ich diese Anzeige? – Du siehst diese Anzeige basierend auf Ihrer Navigation auf unserer Website und den Suchkriterien, die du verwendet hast.
Weitere Energiedaten
Heizungsart
offener Kamin
Details
Objektbeschreibung
Kurzbeschreibung
An der Küste von Badalona, Spanien, bieten diese Wohnungen einen traumhaften Blick auf Strand und Natur. Das exklusive Projekt besticht durch modernes Design und hochwertige Materialien.
Objekt
Moderne Design-Wohnungen am Meer in El Gorg, Badalona
Die zum Verkauf stehenden Wohnungen in...
Weitere Informationen
Stichworte
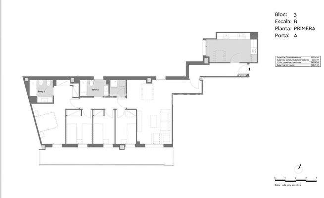
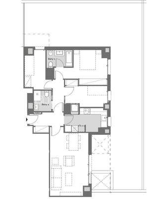
Carport vorhanden, Stellplatz vorhanden, Nutzfläche: 143,00 m², Ladenfläche: 143,00 m², Anzahl der Schlafzimmer: 4, Anzahl der Badezimmer: 2, Anzahl der Wohn-Schlafzimmer: 1, Bundesland: Badalona, 1 Etagen
Anbieter der Immobilie
Spain Homes
C/El Montículo 8, Benalmádena, 29631 MÁLAGA

Online-ID: 2j6jx5u
Referenznummer: BCN-0018-4-MiddleFloor
Finde Angebote wie dieses
Hier geht es zu unserem Impressum, den Allgemeinen Geschäftsbedingungen, den Hinweisen zum Datenschutz und nutzungsbasierter Online-Werbung.