

Maymar Real estate
Frau Yvette Boerner
003 ···
Nr. anzeigenPreise & Kosten
Provision für Käufer
provisionsfrei
Das Haus
Kategorie
Villa
Baujahr
2025
Details
Weitere Informationen
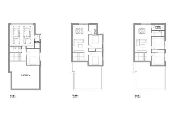
Neu gebaute einstöckige Villen
Neu gebaute einstöckige Villen mit privatem Pool in Torrevieja
Moderne Villen in der exklusiven Gegend von Los Balcones
Entdecken Sie diese atemberaubenden Neubauvillen, die perfekt in der Urbanisation Los Balcones in Torrevieja gelegen sind. Diese auf Komfort und Eleganz...
Anbieter der Immobilie

Online-ID: 2j6qc5w
Referenznummer: MN28TORREVIEJA412
Finde Angebote wie dieses
Hier geht es zu unserem Impressum, den Allgemeinen Geschäftsbedingungen, den Hinweisen zum Datenschutz und nutzungsbasierter Online-Werbung.