
s REAL Steiermark Realservice für steir. Sparkassen Realitätenvermittlungs GmbH
Frau Sonja Mühlbacher-Kolhuber
+43 ···
Nr. anzeigenPreise & Kosten
Kaution
7.100,00 €
Provision für Mieter
2 Bruttomonatsmieten zzgl. 20% USt.
Warum sehe ich diese Anzeige? – Du siehst diese Anzeige basierend auf Ihrer Navigation auf unserer Website und den Suchkriterien, die du verwendet hast.
Lage
8750 Judenburg
Die Ladenfläche
Erdgeschoss
Energie & Heizung
Warum sehe ich diese Anzeige? – Du siehst diese Anzeige basierend auf Ihrer Navigation auf unserer Website und den Suchkriterien, die du verwendet hast.
Heizwärmebedarf (HWB)
209,00 kWh/(m²·a)
Gesamtenergieeffizienz (fGEE)
1,96
Details
Objektbeschreibung
961/32781
Dieses großzügige Geschäftslokal befindet sich in zentraler Lage von Judenburg und überzeugt durch seine vielseitigen Nutzungsmöglichkeiten. Die Fassade wurde kürzlich erneuert, wodurch das Objekt einen modernen und einladenden Charakter erhält.
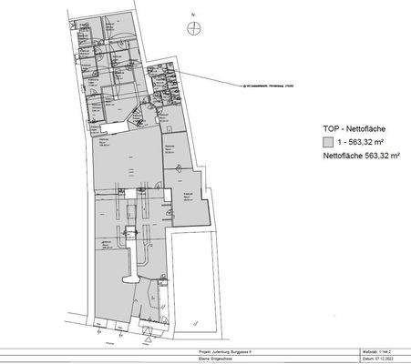
Flächenaufteilung:
* Gesamtnutzfläche: ca...
Preisinformation
Nettokaltmiete: 1.500,00 EUR
Weitere Informationen
Stichworte
Nutzfläche: 568,29 m², Anzahl der separaten WCs: 2, Bundesland: Steiermark
Anbieter der Immobilie

s REAL Steiermark Realservice für steir. Sparkassen Realitätenvermittlungs GmbH
Sparkassenplatz 4 (Zentrale), 8010 GRAZ
Online-ID: 2j6re5b
Referenznummer: OBGC2021011810101642501027bac44
Finde Angebote wie dieses
Hier geht es zu unserem Impressum, den Allgemeinen Geschäftsbedingungen, den Hinweisen zum Datenschutz und nutzungsbasierter Online-Werbung.