

jn Deutscher Immobilien GmbH
Herr Torsten Jungfer
035 ···
Nr. anzeigenPreise & Kosten
Provision für Käufer
3,57 % vom Kaufpreis incl. MwSt.
Lage
Mehltheuer mit seinen ca. 400 Einwohnern befindet sich innerhalb des Gemeindeverbandes Hirschstein im Landkreis Meißen / Bundesland Sachsen. Die Ortschaft liegt landschaftlich schön am Rande der Lommatzscher Pflege. Durch die verkehrsgünstige Lage an der Bundesstraße 6 sind die umliegenden größeren Städte schnell erreichbar...
Das Haus
Geschosse
3 Geschosse
Baujahr
1980
Bezug
nach Kaufpreiszahlung
Derzeitige Nutzung
frei
Energie & Heizung
Warum sehe ich diese Anzeige? – Du siehst diese Anzeige basierend auf Ihrer Navigation auf unserer Website und den Suchkriterien, die du verwendet hast.
Energieausweistyp
Verbrauchsausweis
Gebäudetyp
Wohngebäude
Baujahr laut Energieausweis
1998
Wesentliche Energieträger
Öl
Effizienzklasse
F
Endenergieverbrauch
166,60 kWh/(m²·a) - Warmwasser enthalten
Weitere Energiedaten
Energieträger
Öl
Heizungsart
Zentralheizung
Details
Objektbeschreibung
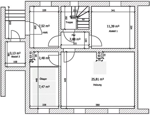
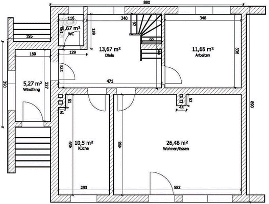
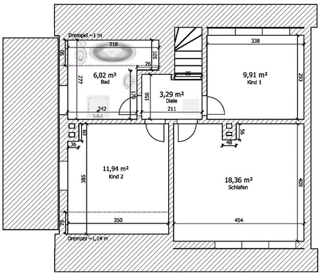
Beim Verkaufsobjekt handelt es sich um eine Einfamiliendoppelhaushälfte in dörfli-cher, ruhiger Siedlungslage von Mehltheuer. Das 1 1/2-geschossige, voll unterkel-lerte Gebäude (Baujahr 1980, Typ EW65 B/D) bietet eine Wohnfläche von 118,76 m² bei einer Gesamtnutzfläche von 205,24 m². Im Erdgeschoss befinden sich nach dem...
Weitere Informationen
Besichtigungstermine
Sie möchten gern einen Blick in das Haus werfen? Dann gleich unverbindlich einen Besichtigungstermin per Mail vereinbaren. Wir beraten Sie gern.
Irrtum und Zwischenverwertung vorbehalten. Über die Angaben des Verkäufers übernehmen wir keine Gewähr
Stichworte
Versorgung: Städtische...
Anbieter der Immobilie

Online-ID: 2j7235n
Referenznummer: DHH 18022025
Finde Angebote wie dieses
Hier geht es zu unserem Impressum, den Allgemeinen Geschäftsbedingungen, den Hinweisen zum Datenschutz und nutzungsbasierter Online-Werbung.