
Windisch Immobilien ivd
Frau Anke Windisch-Zaremba
044 ···
Nr. anzeigenPreise & Kosten
Provision für Käufer
3,57 % Käuferprovision inkl. der gesetzlichen MwSt. vom notariell beurkundeten Kaufpreis, verdient und fällig mit Beurkundung des notariellen Kaufvertrages.
Lage
Das Haus befindet sich auf einem nicht einsehbaren Hintergrundstück im Oldenburger Stadtteil Bümmerstede.
Ärzte, Kindertagesstätten und Schulen sind in der näheren Umgebung.
Zum Spazieren gehen laden die umliegenden Wälder ein. Radfahren auf dem Huntedeich oder ein entspannter Gang durch die Marsch, aber auch...
Das Haus
Baujahr
1996
Energie & Heizung
Warum sehe ich diese Anzeige? – Du siehst diese Anzeige basierend auf Ihrer Navigation auf unserer Website und den Suchkriterien, die du verwendet hast.
Energieausweistyp
Bedarfsausweis
Gebäudetyp
Wohngebäude
Baujahr laut Energieausweis
1996
Wesentliche Energieträger
Gas
Gültigkeit
11.12.2017 bis 10.12.2027
Effizienzklasse
G
Endenergiebedarf
204,80 kWh/(m²·a)
Weitere Energiedaten
Energieträger
Gas
Heizungsart
Zentralheizung
Details
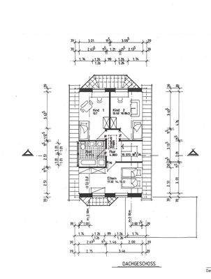
Objektbeschreibung
Renoviertes Einfamilienhaus.
Von der Diele aus erreichen Sie im Erdgeschoss die Küche mit angrenzendem Hauswirtschaftsraum und Ausgang zum Garten. Weiter befindet sich hier das großzügige Wohnzimmer mit Zugang zur Terrasse mit Markise. Nach Feierabend oder am Wochenende können Sie entspannt auf der Terrasse sitzen. Im...
Weitere Informationen
Sonstiges
Dieses Exposé wurde nach den Angaben und Unterlagen der Verkäufer erstellt. Für die Richtigkeit und Vollständigkeit wird trotz sorgfältiger Bearbeitung keine Gewähr übernommen.
Die vom Käufer zu zahlende Maklercourtage beträgt 3,57 % inkl. gesetzl. Mehrwertsteuer und wird nach Abschluss eines notariellen...
Anbieter der Immobilie

Windisch Immobilien ivd
Donnerschweer Str. 127, 26123 Oldenburg
Online-ID: 2j7475q
Referenznummer: VK-EFH-BÜ
Finde Angebote wie dieses
Hier geht es zu unserem Impressum, den Allgemeinen Geschäftsbedingungen, den Hinweisen zum Datenschutz und nutzungsbasierter Online-Werbung.