

TEKCE Real Estate
Herr Özkan Tekçe
+34 ···
Nr. anzeigenPreise & Kosten
Provision für Käufer
Bitte beachte, das Angebot kann bei Vertragsabschluss die Zahlung einer Provision beinhalten. Weitere Informationen erhältst Du vom Anbieter.
Die Wohnung
Kategorie
Apartment
Wohnungslage
Erdgeschoss
Bezug
TEKCE Real Estate
Wohnanlage
Details
Objektbeschreibung
Kurzbeschreibung
Wohnungen in Alanya im Rahmen des Hotelkonzept-Projekts bieten exklusive Hoteleinrichtungen. Die Wohnungen befinden sich im Kargicak-Viertel des Stadtteils Alanya in Antalya.
Objekt
Wohnungen mit Natur und Meerblick in einem Hotelkonzeptprojekt in Alanya
Geräumige Wohnungen befinden sich im...
Weitere Informationen
Stichworte
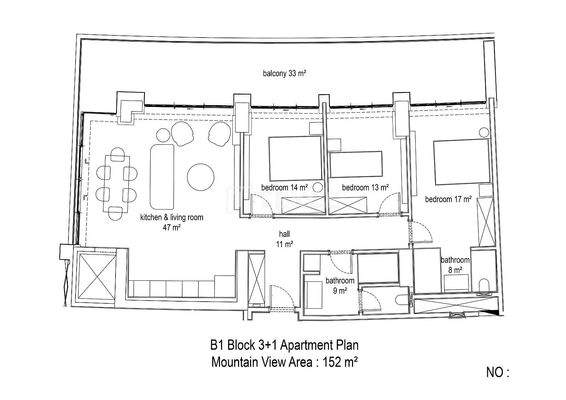
Carport vorhanden, Stellplatz vorhanden, Nutzfläche: 152,00 m², Grundstücksfläche: 26,00 m², Ladenfläche: 152,00 m², Anzahl der Schlafzimmer: 3, Anzahl der Wohn-Schlafzimmer: 1, Bundesland: Alanya, 1 Etagen
Anbieter der Immobilie
TEKCE Real Estate
C/El Montículo 8, Benalmádena, 29631 MÁLAGA

Online-ID: 2j7mm5d
Referenznummer: AYT-04286-3-MiddleFloor
Finde Angebote wie dieses
Hier geht es zu unserem Impressum, den Allgemeinen Geschäftsbedingungen, den Hinweisen zum Datenschutz und nutzungsbasierter Online-Werbung.