

myimmowert GmbH & Co. KG
Herr Andreas Beck
081 ···
Nr. anzeigenPreise & Kosten
Provision für Käufer
provisionsfrei
Lage
Unser Neubauvorhaben befindet sich am östlichen Stadtrand der Landeshauptstadt München in der beliebten Gemeinde Aschheim. Aschheim hat einen charmanten Dorfcharakter und ist durch seine optimale Anbindung an die Landeshauptstadt München und der Vielzahl an Einkaufsmöglichkeiten mit einer hervorragenden Infrastruktur...
Die Wohnung
Wohnungslage
Erdgeschoss
Wohnanlage
Energie & Heizung
Warum sehe ich diese Anzeige? – Du siehst diese Anzeige basierend auf Ihrer Navigation auf unserer Website und den Suchkriterien, die du verwendet hast.
Energieausweistyp
Bedarfsausweis
Gebäudetyp
Wohngebäude
Baujahr laut Energieausweis
2025
Wesentliche Energieträger
Fernwärme
Gültigkeit
31.03.2025 bis 30.03.2035
Effizienzklasse
A
Endenergiebedarf
43,00 kWh/(m²·a)
Weitere Energiedaten
Energieträger
Fernwärme
Haustyp
KfW 55
Heizungsart
Zentralheizung
Details
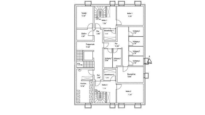
Objektbeschreibung
Zuhause im Herzen von Aschheim!
Wer die zentrale Lage in grüner Umgebung genießen und dennoch schnell in die Münchner Innenstadt gelangen will, liegt mit einer Eigentumswohnung im Zentrum von Aschheim genau richtig.
Das modern gestaltete Mehrfamilienhaus mit 8 Eigentumswohnungen, 8 Außenstellplätzen und 2...
Weitere Informationen
Sonstiges
Wichtige Hinweis & Besichtigungstermine:
Bitte haben Sie Verständnis, dass wir nur Anfragen mit angegebener Telefonnummer und vollständiger Adresse bearbeiten werden!
Erstbesichtigungstermine führen wir ausschließlich von Montag bis Freitag durch!
Aus Haftungsgründen sprechen wir bei den...
Anbieter der Immobilie
myimmowert GmbH & Co. KG
Torfstr. 3, 85464 Finsing

Online-ID: 2j83p5m
Referenznummer: 12023
Finde Angebote wie dieses
Hier geht es zu unserem Impressum, den Allgemeinen Geschäftsbedingungen, den Hinweisen zum Datenschutz und nutzungsbasierter Online-Werbung.