

Engel & Völkers Gewerbe GmbH & Co. KG
Team Abteilung Büroflächenvermietung
+49 ···
Nr. anzeigenPreise & Kosten
Provision für Mieter
provisionsfrei
Warum sehe ich diese Anzeige? – Du siehst diese Anzeige basierend auf Ihrer Navigation auf unserer Website und den Suchkriterien, die du verwendet hast.
Lage
Das Objekt befindet sich direkt auf dem Gelände des Hamburg Airport, einem der zentralsten City-Flughäfen Europas. Profitieren Sie von der optimalen Anbindung an Autobahnen und den öffentlichen Nahverkehr sowie von kurzen Wegen zu allen Annehmlichkeiten. Eine Vielzahl von Shops, Restaurants, Cafés, eine Apotheke und ein...
Büro-/Praxisfläche
Kategorie
Bürofläche
Baujahr
2000
Bezug
Ende 2025
Energie & Heizung
Warum sehe ich diese Anzeige? – Du siehst diese Anzeige basierend auf Ihrer Navigation auf unserer Website und den Suchkriterien, die du verwendet hast.
Wärme
Strom
Energieausweistyp
Verbrauchsausweis
Gebäudetyp
Nicht-Wohngebäude
Baujahr laut Energieausweis
2000
Wesentliche Energieträger
Fernwärme, KWK fossil
Gültigkeit
bis 03.12.2024
Endenergieverbrauch (Wärme)
92,00 kWh/(m²·a)
Endenergieverbrauch (Strom)
51,00 kWh/(m²·a)
Weitere Energiedaten
Energieträger
Fernwärme
Details
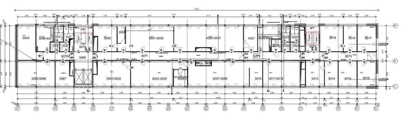
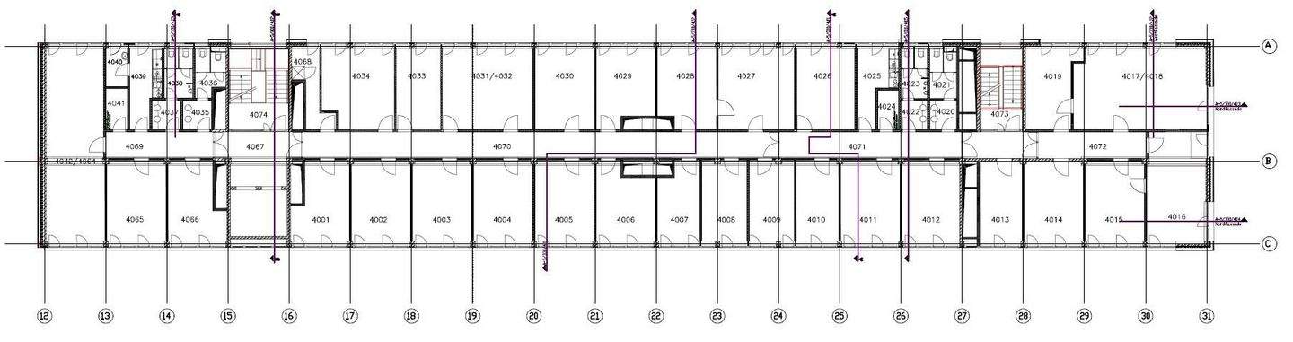
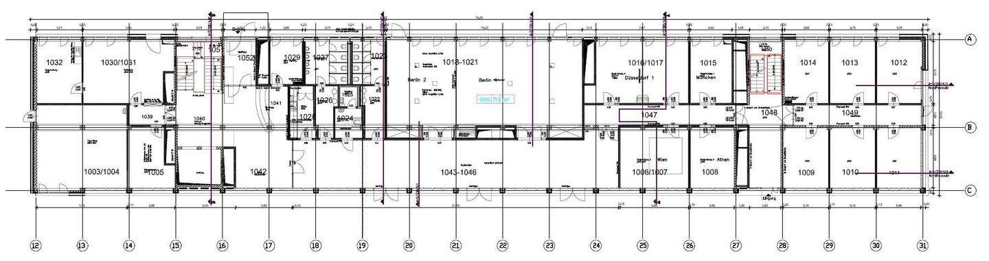
Objektbeschreibung
Die Büroflächen zeichnen sich durch eine hohe Flexibilität bei der Flächenaufteilung aus. Von Einzel- und Großraumbüros bis hin zu Meeting- und Kreativräumen lässt sich alles umsetzen und für Sie wirtschaftlich optimal anpassen.
Die Flächen befinden sich im Erdgeschoss, sowie im 1., 2. und 3. Obergeschoss.
Miete...
Ausstattung
.Aufteilung nach Mieterwunsch
.Empfang im EG
.6 Konferenzräume im EG
.KAT-5 Verkabelung
.teilklimatisiert (1. und 5. OG)
.Personenaufzüge
.Pantry
.separate Sanitäreinheiten
.E-Schnellladepark Ende 2025
Weitere Informationen
Sonstiges
COURTAGE:
3 Brutto-MM zzgl. gesetzl. MwSt.
Besonderheit: Courtagefrei für den Mieter bei einer MV-Laufzeit von mindestens 5 Jahren.
ENERGETISCHE ECKDATEN:
Energieverbrauchsausweis
Energieträger: Fernwärme (KWK)
Endenergieverbrauch Strom: 51 kWh/m²a
Endenergieverbrauch Wärme: 92...
Anbieter der Immobilie
Engel & Völkers Gewerbe GmbH & Co. KG
Stadthausbrücke 5, 20355 Hamburg

Online-ID: 2j8bj5s
Referenznummer: BFVEV1623276
Finde Angebote wie dieses
Hier geht es zu unserem Impressum, den Allgemeinen Geschäftsbedingungen, den Hinweisen zum Datenschutz und nutzungsbasierter Online-Werbung.