
mare-domus Immobilien GbR
Herr/Frau Stefan Merchel
038 ···
Nr. anzeigenPreise & Kosten
Provision für Käufer
3,57% inkl. MwSt.
Lage
1A-Lage
Zingst - Maritimes Leben, eine Vielzahl von kulturellen Angeboten, lassen Sie sich vom pulsierenden Leben und von der abgeschiedenen Natur begeistern ! Ruhig, idyllisch, vorteilhaft zum weißen Strand und nur wenige Meter vom Ortszentrum des Ostseeheilbades Zingst gelegen, sind mitten im Zentrum im Jahre 2004...
Das Haus
Kategorie
Doppelhaushälfte
Baujahr
2004
Energie & Heizung
Warum sehe ich diese Anzeige? – Du siehst diese Anzeige basierend auf Ihrer Navigation auf unserer Website und den Suchkriterien, die du verwendet hast.
Energieausweistyp
Verbrauchsausweis
Gebäudetyp
Wohngebäude
Baujahr laut Energieausweis
2004
Wesentliche Energieträger
Gas
Gültigkeit
06.05.2024 bis 06.09.2034
Effizienzklasse
B
Endenergieverbrauch
62,30 kWh/(m²·a)
Weitere Energiedaten
Haustyp
Massivhaus
Energieträger
Gas
Details
Objektbeschreibung
Gebäude & Grundstück:
- Wohnhaushälfte mit 95 qm Nutzfläche in massiver Bauweise
- Hartdacheindeckung - Satteldach mit Dachflächenfenstern
- Holzfenster mit 2-fach Verglasung
- Holzbalkendecke
- Gaszentralheizung mit Wandheizkörpern
- Fußböden gefliest oder Auslegware
- Bad im Obergeschoss 2025...
Ausstattung
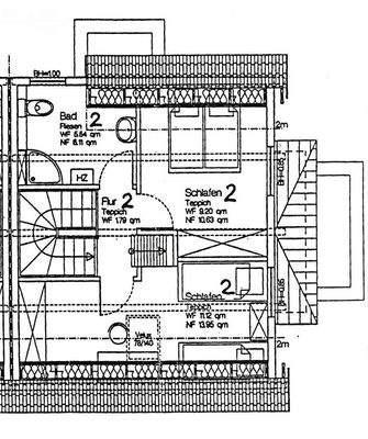
Aufteilung der Haushälfte 2
EG:
- offener Wohn- und Essbereich mit Küche
- Flur
- Gäste WC
- Hausanschlussraum
- Einbauküche mit Einbaugeräten
- Terrasse mit Südostausrichtung
DG:
- 2 Schlafzimmer
- Duschbadezimmer
Preisinformation
2 Stellplätze
Weitere Informationen
Stichworte
Stellplatz vorhanden, Nutzfläche: 30,00 m², Anzahl der Schlafzimmer: 2, Anzahl der Badezimmer: 1, Anzahl der separaten WCs: 1, Anzahl Terrassen: 1
Anbieter der Immobilie
mare-domus Immobilien GbR
Bernhard-Seitz-Weg 18, 18347 Ahrenshoop
Online-ID: 2j8ej5w
Referenznummer: 945#0d8sa
Finde Angebote wie dieses
Hier geht es zu unserem Impressum, den Allgemeinen Geschäftsbedingungen, den Hinweisen zum Datenschutz und nutzungsbasierter Online-Werbung.