
LIPNO REAL s.r.o.
Frau Carmen Beuer
+43 ···
Nr. anzeigenPreise & Kosten
Provision für Käufer
3% des Kaufpreises zzgl. 21% USt.
Die Wohnung
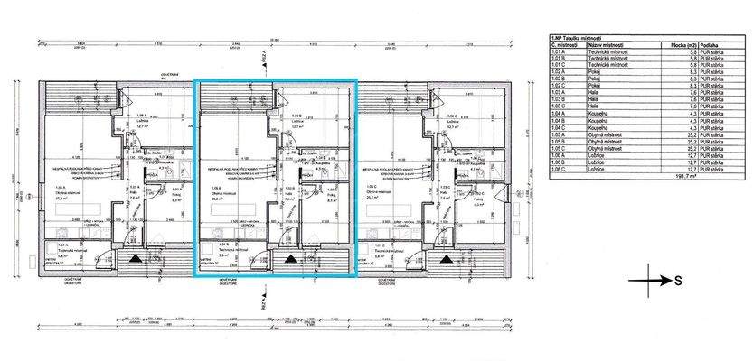
Wohnungslage
Erdgeschoss
Details
Objektbeschreibung
Willkommen bei dieser exklusiven Premium-Wohnung in Frymburk, Teil eines beeindruckenden Neubauprojekts. Diese Wohneinheit vom Typ "B" bietet Platz für 4-5 Personen und besticht durch einen durchdachten Grundriss, der von einem großzügigen Wohnzimmer beherrscht wird. Dieses Wohnzimmer ist nahtlos mit der Küche, dem Essbereich...
Weitere Informationen
Stichworte
Anzahl Loggias: 1, Balkon-Terrassen-Fläche: 6,00 m², Gartenfläche: 61,00 m², Bundesland: Jihocesky kraj
Anbieter der Immobilie
LIPNO REAL s.r.o.
Prístav 71, 38278 Lipno nad Vltavou
Online-ID: 2j8yr5z
Referenznummer: OBGC20231113100600076f0c14d9669
Finde Angebote wie dieses
Hier geht es zu unserem Impressum, den Allgemeinen Geschäftsbedingungen, den Hinweisen zum Datenschutz und nutzungsbasierter Online-Werbung.