

Küspert & Küspert Immobilienberatung
Frau Luisa Zaha Krutzki
+49 ···
Nr. anzeigenPreise & Kosten
Provision für Mieter
provisionsfrei
Warum sehe ich diese Anzeige? – Du siehst diese Anzeige basierend auf Ihrer Navigation auf unserer Website und den Suchkriterien, die du verwendet hast.
Lage
ÖPNV: U-Bahnanschluss ca. 2 Gehminuten, S-Bahnanschluss ca. 13 Gehminuten, Straßenbahn ca. 2 Gehminuten, Bushaltestelle ca. 4 Gehminuten - nächste Autobahnanschlussstelle: A3 Nürnberg-Nord ca. 14 Fahrminuten - Hauptbahnhof Nürnberg ca. 6 Fahrminuten - City ca. 13 Fahrminuten - Flughafen ca. 16 Fahrminuten entfernt
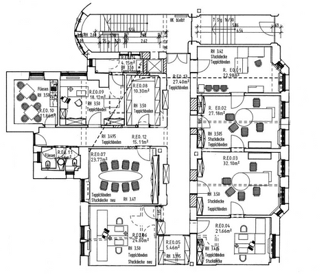
Büro-/Praxisfläche
Kategorie
Bürogebäude
Details
Objektbeschreibung
- Wohn- und Geschäftshaus
- Grundrenovierung: 1995 und 1997
- repräsentativer Eingangsbereich mit Kreuzgewölbe
- charakteristisches Treppenhaus
- Hausmeisterservice
- Personenaufzug vorhanden
Ausstattung
- innenliegender Blendschutz
- Deckenhöhe 3,30 m (EG)
- Deckenspots, Wandbeleuchtung
- Kabelführung über Kabelkanäle
- Teppichboden, teilweise hochwertiger Marmorbelag
- Teeküche vorhanden
- Stiltüren
- Balkon vorhanden
Weitere Informationen
Flächen
Büroflächen im Hochparterre mit ca. 255,00 m²,
weitere Büros mit ca. 94,00 m² stehen im Souterrain zur Verfügung
Miete/Monat
Bürofläche im Hochparterre ab 13,00 EUR/m²
Alle Mietpreise zzgl. der gesetzl. MwSt.
Bezug
auf Anfrage
Maklerhonorar
Die Anmietung ist für den...
Anbieter der Immobilie

Online-ID: 2j93t5e
Referenznummer: P0112/9999
Finde Angebote wie dieses
Hier geht es zu unserem Impressum, den Allgemeinen Geschäftsbedingungen, den Hinweisen zum Datenschutz und nutzungsbasierter Online-Werbung.