
Crozilla.com
Larus ltd
+38 ···
Nr. anzeigenPreise & Kosten
Provision für Käufer
Bitte beachte, das Angebot kann bei Vertragsabschluss die Zahlung einer Provision beinhalten. Weitere Informationen erhältst Du vom Anbieter.
Die Wohnung
Wohnungslage
2. Geschoss
Details
Objektbeschreibung
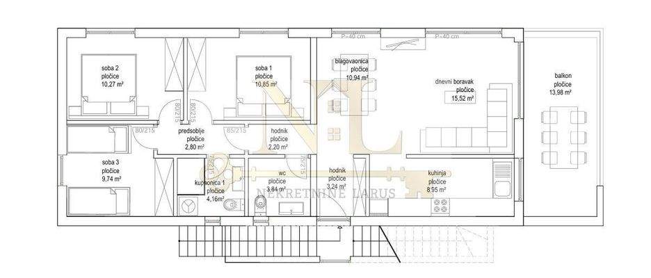
Wir verkaufen eine Penthouse-Wohnung S3 im zweiten Stock mit Dachterrasse, Okrug Gornji, Insel Ciovo.
Das Gebäude besteht aus 3 Wohnungen und jede Wohnung verfügt über zwei Außenparkplätze.
Die Entfernung des Gebäudes vom Meer und Strand beträgt 160 m.
Penthouse-Wohnung S3 im zweiten Stock mit Dachterrasse...
Weitere Informationen
Stichworte
Anzahl der Schlafzimmer: 3, Anzahl der Badezimmer: 4, 1 Etagen
Anbieter der Immobilie
Crozilla.com
Nova cesta 60, 10000 ZAGREB
Online-ID: 2j9es5v
Referenznummer: 16446863_3
Finde Angebote wie dieses
Hier geht es zu unserem Impressum, den Allgemeinen Geschäftsbedingungen, den Hinweisen zum Datenschutz und nutzungsbasierter Online-Werbung.