
Kern-Haus AG, Niederlassung Erfurt
036 ···
Nr. anzeigenPreise & Kosten
Provision für Käufer
provisionsfrei
Lage
In mitten blühender Natur und trotzdem nah an der Stadt gelegenes, ruhiges mit Weitblick ausgestattetes Traumgrundstück.
Das Haus
Kategorie
Einfamilienhaus
Baujahr
2025
Energie & Heizung
Warum sehe ich diese Anzeige? – Du siehst diese Anzeige basierend auf Ihrer Navigation auf unserer Website und den Suchkriterien, die du verwendet hast.
Energieausweistyp
Bedarfsausweis
Gebäudetyp
Wohngebäude
Effizienzklasse
A+
Endenergiebedarf
17,61 kWh/(m²·a)
Weitere Energiedaten
Energieträger
Elektro
Heizungsart
Fußbodenheizung, Zentralheizung
Details
Objektbeschreibung
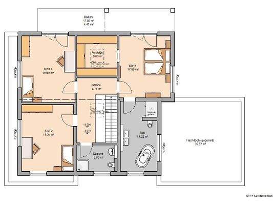
Das Bauhaus Anteo ist ein modernes Kern-Haus mit 214 m². Hier hat eine Familie genügend Platz um sich Wohlzufühlen.
Das Wohn- und Esszimmer auf 55 m² wird zum Lebensmittelpunkt des Hauses, denn direkt angeschlossen ist die offene Küche mit Speisekammer. Große Fensterelemente im Wohnbereich bieten eine grenzenlose...
Ausstattung
5 Zimmer, offene Küche, Diele, 2 x Dusche, Galerie, Bad, Ankleide, Hauswirtschaftsraum, Speisekammer, Balkon, Doppelgarage
Das gezeigte Traumhaus im Überblick:
+ Schlüsselfertiges Massivhaus im Sinne der Ausstattungsbeschreibung "Edition 25"
+ Zukunftsorientierte Energieausstattung in Form einer...
Weitere Informationen
Sonstiges
Kern-Haus
Kern-Haus baut individuelle und massive Architektenhäuser zu einem attraktiven Preis-Leistungs-Verhältnis - und das bereits mit einer Erfahrung seit 1980. Bei Kern-Haus erhalten Sie unter anderem 10 Jahre Gewährleistung auf die wesentlichen Bauleistungen, bis zu 24 Monate Preissicherheit sowie...
Anbieter der Immobilie
Online-ID: 2j9fr5z
Referenznummer: KEF 72965
Finde Angebote wie dieses
Hier geht es zu unserem Impressum, den Allgemeinen Geschäftsbedingungen, den Hinweisen zum Datenschutz und nutzungsbasierter Online-Werbung.