
DAHLER Kiel
Herr Cord Hansen
004 ···
Nr. anzeigenPreise & Kosten
Provision für Käufer
2,98 % inkl. gesetzl. MwSt. des beurkundeten Kaufpreises. .
Lage
Diese exklusive Villa mit angrenzendem ehemaligem Kutscherhaus befindet sich in der malerischen Umgebung von Westerholz in der Region Langballigau, eingebettet in die idyllische Landschaft, unmittelbar über der Flensburger Förde. Diese Lage ist ideal für alle, die die Ruhe und die Schönheit der Natur genießen möchten, ohne...
Das Haus
Kategorie
Villa
Baujahr
1910
Energie & Heizung
Warum sehe ich diese Anzeige? – Du siehst diese Anzeige basierend auf Ihrer Navigation auf unserer Website und den Suchkriterien, die du verwendet hast.
Energieausweistyp
Verbrauchsausweis
Gebäudetyp
Wohngebäude
Wesentliche Energieträger
OEL
Gültigkeit
bis 09.11.2027
Effizienzklasse
E
Endenergieverbrauch
146,60 kWh/(m²·a)
Weitere Energiedaten
Energieträger
Öl
Heizungsart
offener Kamin
Details
Objektbeschreibung
Entdecken Sie ein Juwel der Geschichte in Westerholz / Langballigau: Eine majestätische Villa über der Flensburger Förde aus dem Jahr 1910, die keine Wünsche offenlässt. Dieses einzigartige Anwesen oberhalb der Flensburger Förde erstreckt sich über ein beeindruckendes Grundstück von etwa 22.662 m². Auf einer Länge von ca. 90...
Ausstattung
Dieses charmante und fast einzigartige Villenanwesen in Bestlage wartet darauf aus dem Dornröschenschlaf zu erwachen und bietet durch verschiedene Stilelemente und viel Charme aus der guten alten Zeit alle Voraussetzungen um im neuem Glanze zu erstrahlen:
Kleine Auswahl von Ausstattungsmerkmalen:
_3...
Weitere Informationen
Stichworte
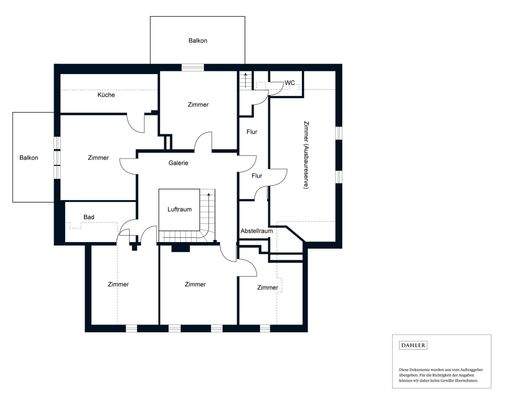
Nutzfläche: 134,00 m², Anzahl der Schlafzimmer: 5, Anzahl der Badezimmer: 2, Anzahl der separaten WCs: 2, Anzahl Balkone: 2, Anzahl Terrassen: 2
Sonstiges/Wohnen: Einliegerwohnung
Anbieter der Immobilie

DAHLER Kiel
Moltkestrasse 6, 24105 Kiel
Online-ID: 2j9sg5m
Referenznummer: DC-KIE596
Finde Angebote wie dieses
Hier geht es zu unserem Impressum, den Allgemeinen Geschäftsbedingungen, den Hinweisen zum Datenschutz und nutzungsbasierter Online-Werbung.