Version: 8.24.0Navigation überspringen
10,25 €
6 Zimmer  •  125 m² Bürofläche
Immowelt logo

Büro zur Miete
10,25 €
/m²
6 Zimmer  •  125 m² Bürofläche

Hochwertige Büroräume in Logistikimmobilie Bj. 2025

Die hier angebotenen Räume befinden sich in einer Logistikimmobilie (Baujahr 2025, Erstbezug). Es handelt sich um eine autarke Büroeinheit im 1. OG. Das Gebäude ist modern isoliert und mit einer Wärmepumpe ausgestattet.

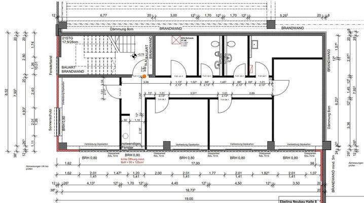
Auf 125 m² Grundfläche sind drei Büroräume, Besprechungsraum, Teeküche, Materialraum, Serverraum und zwei Toiletten durch einen Flur verbunden (siehe Grundriss).

Die Nebenkosten sind inkludiert, diverse Logistikdienstleistungen können zugebucht werden.

Merkmale

  • Bezug: Erstbezug
  • 1. Geschoss
  • Teeküche
  • Außen-Stellplatz
  • Laderampe
  • LKW-Zufahrt
  • Beleuchtung: Deckenbeleuchtung
  • Wachdienst

Grundrisse

Grundrisse
1 / 2

Realisiere Dein Projekt

Bausubstanz und Energie

Der Anbieter hat keine Informationen zum Energieverbrauch bereit gestellt.
  • Baujahr2025
Immowelt logo

Mietkosten

Warmmiete
1.280 €
Monatliche Miete
10,25 €/m²
Provision für Mieter
Bitte beachte, das Angebot beinhaltet bei Vertragsabschluss die Zahlung einer Provision. Weitere Informationen erhältst Du vom Anbieter.
Kaution
keine Angabe

Lage

address-icon
An der Autobahn 17GailhofWedemark (30900)

Weitere Informationen

Sonstiges Büroetage im Logistikzentrum Wir vermieten hochwertige, bezugsfertige Büro- und Lagerräume an unserem Hauptsitz in der Wedemark, ca. 20 km nördlich von Hannover, direkt an der A7. Das Logistikzentrum der Georg Ebeling Spedition GmbH bietet verschiedene Mietvarianten mit Lager-, Produktions- oder Kommissioniermöglichkeiten. Die Räume sind flexibel aufteilbar, vom kleinen gemütlichen Büro, bis zu kompletten Büroetagen mit direkter Anbindung an Produktions- und Lagerflächen sowie der Nutzung als Showroom. Mehrwert durch Logistik Sie wollen mehr als nur die reine Bodenfläche? Dann sind Sie bei uns genau richtig:
· Umfangreicher "Rundumservice" in der Warmmiete inbegriffen
· Eigene Parkplätze direkt vor den Büroräumen
· Erweiterung/Reduktion der Räumlichkeiten kurzfristig möglich
· Sehr gepflegter, vorzeigefähiger Standort im Gewerbepark
· Gute Verkehrsanbindung A7 / A352, eine Bushaltestelle ist fußläufig erreichbar
· Kurze Laufzeiten der Mietverträge möglich
· Umfangreiche Dienstleistungsmöglichkeiten vor Ort (Logistik, Versand, Telefonzentrale, Fahrservice etc.)
· Sehr gute, bereits vorkonfektionierte EDV-Anbindung mit eigenem Telefonanschluss

Sie profitieren am Standort ohne Aufpreis von vielen einmaligen Vorzügen:
· Integration in die Beschilderung "Wegweiser Gewerbepark A7"
· Betriebsgelände bis zu einer Höhe von 2,20 m komplett umzäunt
· Nachtwächter an 7 Tagen in der Woche
· Winterdienst auf dem gesamten Gelände
· Hausmeister für kleine Reparaturen immer vor Ort

Folgende Dienstleistungen können genutzt werden:
· Firmeneigene IT unterstützt kostengünstig bei Problemen
· Betriebstankstelle (Diesel) zu günstigen Konditionen nutzbar
· Betriebsfachwerkstatt zu günstigen Konditionen nutzbar
· Nutzung unserer Telefonzentrale zur Weiterleitung von Telefonaten
· ...und vieles mehr - fragen Sie uns!

Genießen Sie die Vorzüge der direkten Anbindung an einen der stärksten mittelständischen Logistikdienstleister im Großraum Hannover:
· Anmietung kleiner Lagerraumeinheiten in Eigennutzung
· Anmietung von Palettenstellplätzen
· Warenannahme von Post, Paket, Palette bis hin zu ganzen LKW Ladungen, auch wenn Sie nicht im Büro sind
· Versand von Briefen, Paketen, Paletten, Großmaschinen: alles ist möglich
· Kommissionierung, Konfektionierung, Displaybau und vieles mehr

Unsere Konditionen passen hervorragend in jede wirtschaftliche Kalkulation. Die Warmmiete beläuft sich auf 10,25 EUR je m². Weitere Kosten entstehen für Sie nur bei Nutzung unserer Logistikservices. Besichtigungen und Kontakt Haben wir Ihr Interesse geweckt? Haben Sie noch Rückfragen oder möchten eine andere Mietvariante anfragen? Dann kontaktieren Sie uns und vereinbaren einen Besichtigungstermin. Wir freuen uns auf Sie!
Stichworte Zustand: Erstbezug, gepflegt Sonstiges: ISDN, EDV-Arbeitsplatzbeleuchtung, Getrennte Damen- und Herren-WCs

Weitere Services

Lust auf eine Besichtigung?
Eine Frage zur Immobilie?
Nachricht hinzufügen
Mit der Nutzung der oben angegebenen Telefonnummer oder durch Klicken auf „Kontaktieren“ akzeptierst Du die Allgemeinen Nutzungsbedingungen, denen Du jederzeit widersprechen kannst. Weitere Informationen zum Datenschutz

Über den Anbieter

An der Autobahn 9-11, 30900 Wedemark
Herr Oliver KilianDein Kontakt
Online-ID: 2j9tp55
Georg Ebeling Spedition GmbH
Nachricht hinzufügen
Mit der Nutzung der oben angegebenen Telefonnummer oder durch Klicken auf „Kontaktieren“ akzeptierst Du die Allgemeinen Nutzungsbedingungen, denen Du jederzeit widersprechen kannst. Weitere Informationen zum Datenschutz
Wie zufrieden bist du mit dieser Seite (nicht mit der Immobilie selbst)?