

Homes & Holiday AG
Firma Porta Mallorquina a brand of Homes & Holiday
+34 ···
Nr. anzeigenPreise & Kosten
Provision für Käufer
Bitte beachte, das Angebot kann bei Vertragsabschluss die Zahlung einer Provision beinhalten. Weitere Informationen erhältst Du vom Anbieter.
Lage
Der Stadtteil Santa Catalina in der Inselhauptstadt Palma ist eine der typischen Wohngegenden in der "Stadt der Palmen", und Standort des berühmtes Marktes von Santa Catalina. Auf diesem traditionellen Markt kann man vor allem die landestypischen Produkte der Insel und auch die artenreichen Früchte des Meeres fangfrisch...
Die Wohnung
Wohnungslage
3. Geschoss
Wohnanlage
Energie & Heizung
Warum sehe ich diese Anzeige? – Du siehst diese Anzeige basierend auf Ihrer Navigation auf unserer Website und den Suchkriterien, die du verwendet hast.
Weitere Energiedaten
Energieträger
Elektro
Heizungsart
Fußbodenheizung
Details
Objektbeschreibung
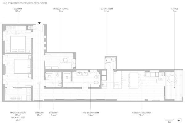
Die komplett neurenovierte Wohnung liegt im beliebten Viertel Santa Catalina in Palma. Diese stilvolle Immobilie, die 1975 erbaut und derzeit vollständig nach deutschem Standard saniert wird, verspricht gehobenen Wohnkomfort auf ca. 132 qm Wohnfläche.
Diese moderne Wohnung bietet großzügige 4 Zimmer, davon 3...
Weitere Informationen
Stichworte
Anzahl der Schlafzimmer: 3, Anzahl der Badezimmer: 2, Anzahl Balkone: 1, Balkon-Terrassen-Fläche: 9,00 m², Bundesland: Balearische_Inseln, modernisiert
Anbieter der Immobilie
Homes & Holiday AG
Theresienstr. 81, 80333 München

Online-ID: 2ja2h5s
Referenznummer: MAL-122005
Finde Angebote wie dieses
Hier geht es zu unserem Impressum, den Allgemeinen Geschäftsbedingungen, den Hinweisen zum Datenschutz und nutzungsbasierter Online-Werbung.