

Bauverein Sulingen, Niederlassung der Volksbank Niedersachsen-Mitte eG
042 ···
Nr. anzeigenPreise & Kosten
Kaution
954,00 Euro Kaution
Provision für Mieter
Bitte beachte, das Angebot kann bei Vertragsabschluss die Zahlung einer Provision beinhalten. Weitere Informationen erhältst Du vom Anbieter.
Warum sehe ich diese Anzeige? – Du siehst diese Anzeige basierend auf Ihrer Navigation auf unserer Website und den Suchkriterien, die du verwendet hast.
Lage
Die Gewerbefläche liegt im Herzen von Verden (Aller), einer belebten Fußgängerzone mit hoher Kundenfrequenz. Geschäfte, Cafes und Dienstleister in direkter Umgebung sorgen für eine attraktive Lage mit guter Erreichbarkeit.
Die Ladenfläche
Bezug
ab sofort
Derzeitige Nutzung
frei
Energie & Heizung
Warum sehe ich diese Anzeige? – Du siehst diese Anzeige basierend auf Ihrer Navigation auf unserer Website und den Suchkriterien, die du verwendet hast.
Weitere Energiedaten
Energieträger
Gas
Heizungsart
Zentralheizung
Details
Objektbeschreibung
Wir bieten eine attraktive Gewerbeeinheit mit insgesamt 46 m² zur Vermietung an, ideal geeignet für verschiedene Nutzungsmöglichkeiten wie Ladenlokale, Büro oder Atelier.
Die Gewerbeeinheit verfügt über ein großes Schaufenster sowie einen kleinen Abstellraum mit Zugang zum WC (separat).
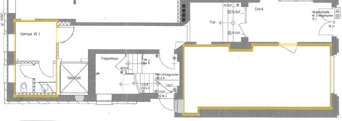
Der Grundriss kann...
Weitere Informationen
Besichtigung
Nach Eingang Ihrer Anfrage erhalten Sie am nächsten Werktag von uns eine E-Mail mit einem Fragebogen für Wohnungsbewerber als Anhang.
Vor Vereinbarung eines Besichtigungstermins benötigen wir diesen Fragebogen ausgefüllt zurück.
Sollte die E-Mail nicht bei Ihnen ankommen, melden Sie sich bitte...
Online-ID: 2jajx56
Referenznummer: 500.1.4
Finde Angebote wie dieses
Hier geht es zu unserem Impressum, den Allgemeinen Geschäftsbedingungen, den Hinweisen zum Datenschutz und nutzungsbasierter Online-Werbung.