
DiMA Immobiliencenter GmbH
Herr Hans Vaassen
004 ···
Nr. anzeigenPreise & Kosten
Provision für Käufer
3570,00 € inkl. MwSt.
Lage
Blankenheim ist eine Gemeinde im nordrhein-westfälischen Kreis Euskirchen, im Westen Deutschlands. Die Gemeinde liegt am südwestlichen Rand des Naturparks Nordeifel, etwa 30 Kilometer südwestlich von Bonn und etwa 20 Kilometer nordwestlich von Aachen. Blankenheim erstreckt sich über eine hügelige Landschaft, die von Wäldern...
Das Haus
Kategorie
Einfamilienhaus
Energie & Heizung
Warum sehe ich diese Anzeige? – Du siehst diese Anzeige basierend auf Ihrer Navigation auf unserer Website und den Suchkriterien, die du verwendet hast.
Energieausweis: für diesen Gebäudetyp nicht notwendig
Details
Objektbeschreibung
Das Einfamilienhaus gleicht einem perfekt durchdachten Raumwunder.
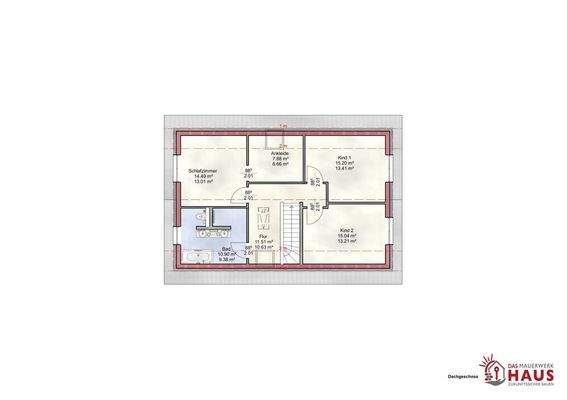
Auf zwei Geschossen erstreckt sich das Haus auf 140 m². Im Erdgeschoss befinden sich ein Gäste-WC, der Hauswirtschaftsraum, Büro und der großzügige Wohn-/ Essbereich mit angrenzender Küche, der durch bodentiefe Fensterelemente wunderbar erhellt wird...
Ausstattung
5 Zimmer, Küche, Diele, Bad, Gäste-WC, Ankleide, Flur, Hauswirtschaftsraum
Das gezeigte Traumhaus im Überblick:
+ Schlüsselfertiges Massivhaus im Sinne der Ausstattungsbeschreibung BLB 10-2024
+ Zukunftsorientierte Energieausstattung in Form einer Luft-Wasser-Wärmepumpe (Firma Vaillant) und Fußbodenheizung...
Weitere Informationen
Sonstiges
Das Objekt wird durch unseren Kooperationspartner der Firma Mauerwerkhaus GmbH und Co.KG erstellt.
Weitere Informationen erhalten Sie in diesem Büro!
Stichworte
Anzahl der Schlafzimmer: 3, Anzahl der Badezimmer: 1, Anzahl der separaten WCs: 1, 1 Etagen
Anbieter der Immobilie
DiMA Immobiliencenter GmbH
Engelblecker Str. 184, 41066 Mönchengladbach
Online-ID: 2jasm55
Referenznummer: 5881
Finde Angebote wie dieses
Hier geht es zu unserem Impressum, den Allgemeinen Geschäftsbedingungen, den Hinweisen zum Datenschutz und nutzungsbasierter Online-Werbung.