
Nach Hause Immobilien GmbH & Co. KG
Frau Grit Kühnapfel
004 ···
Nr. anzeigenPreise & Kosten
Provision für Käufer
3,57 % inkl. MwSt.
Abschreibung/Anlage
Denkmalschutz-Afa
Lage
Die Wohnung befindet sich in der Ringstraße 49, zentral gelegen in der Großen Kreisstadt Markkleeberg, südlich von Leipzig. Die Umgebung zeichnet sich durch eine Mischung aus historischer Architektur und modernen Wohnbauten aus.
Die Lage bietet eine hervorragende Anbindung an den öffentlichen Nahverkehr. Der S-Bahnhof...
Die Wohnung
Kategorie
Maisonette
Wohnungslage
3. Geschoss
Bezug
sofort
Wohnanlage
Energie & Heizung
Warum sehe ich diese Anzeige? – Du siehst diese Anzeige basierend auf Ihrer Navigation auf unserer Website und den Suchkriterien, die du verwendet hast.
Energieausweis: für diesen Gebäudetyp nicht notwendig
Weitere Energiedaten
Energieträger
Gas
Details
Objektbeschreibung
Objekt
Herzlich willkommen in Ihrem zukünftigen Zuhause!
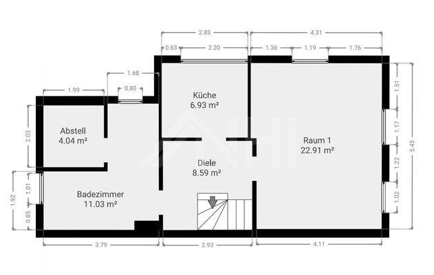
Zum Verkauf steht eine denkmalgeschützte Maisonette-Wohnung in einer gepflegten und massiv erbauten Wohnanlage aus dem Jahr 1904, gelegen im idyllischen Markkleeberg. Die Wohnung bietet eine Wohnfläche von 66 m², die sich über zwei Ebenen erstreckt. Sie...
Preisinformation
1 Stellplatz
Nettokaltmiete: 481,73 EUR
Weitere Informationen
Sonstiges
Frau Grit Kühnapfel
Immobilienmaklerin
Nach Hause Immobilien GmbH & Co. KG
Froschkönigweg 1
04277 Leipzig (Marienbrunn)
Telefon +49 341 86721235
Mobil +49 173 5193311
verkauf@nachhause-immobilien.de
Stichworte
Grundstücksfläche: 1.010,00 m², Anzahl der Badezimmer: 1, Anzahl der...
Anbieter der Immobilie
Nach Hause Immobilien GmbH & Co. KG
Froschkönigweg 1, 04277 Leipzig
Online-ID: 2javp5x
Referenznummer: 2059
Finde Angebote wie dieses
Hier geht es zu unserem Impressum, den Allgemeinen Geschäftsbedingungen, den Hinweisen zum Datenschutz und nutzungsbasierter Online-Werbung.