

Leo Wacker Immobilien
Herr Leo Wacker
030 ···
Nr. anzeigenPreise & Kosten
Provision für Käufer
3,57 % vom Kaufpreis inkl. MwSt.
Abschreibung/Anlage
als Kapitalanlage geeignet
Lage
Das Haus liegt an einer ruhigen Anwohnerstraße mit guter Anbindung an den öffentlichen Nahverkehr über die U4-Bahnstationen Viktoria-Luise-Platz und Nollendorfplatz. Besonders attraktiv ist die Lage wegen der fußläufigen Entfernung zum Viktoria-Luise-Platz, Motzstr. und zum Winterfeldtplatz.
Der Wochenmarkt am...
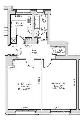
Die Wohnung
Wohnungslage
Erdgeschoss
Bezug
Eigenbedarfskündigungsschutz: bis 2031
Derzeitige Nutzung
vermietet
Wohnanlage
Energie & Heizung
Warum sehe ich diese Anzeige? – Du siehst diese Anzeige basierend auf Ihrer Navigation auf unserer Website und den Suchkriterien, die du verwendet hast.
Energieausweistyp
Verbrauchsausweis
Gebäudetyp
Wohngebäude
Baujahr laut Energieausweis
1956
Wesentliche Energieträger
Gas
Gültigkeit
01.08.2023 bis 31.07.2033
Effizienzklasse
D
Endenergieverbrauch
126,50 kWh/(m²·a) - Warmwasser enthalten
Weitere Energiedaten
Energieträger
Gas
Heizungsart
Etagenheizung
Details
Objektbeschreibung
Das Haus wurde 1956 errichtet. Das Dachgeschoß wurde mit zwei Wohnungen bereits 1994 ausgebaut und 2017 kamen zwei Fahrstuhle Marke Schindler. 2006 wurde das Haus wärmegedämmt.
Etage: Hochparterre
Balkon: kein
Bad mit Wanne und Fenster: ja
Bad mit Hänge-WC: ja
Neue Fenster im Bad und Küche: 2018
Neue...
Weitere Informationen
Wichtig
Ganz wichtig bei der Anfrage: Teilen Sie uns Ihre vollständigen Kontaktdaten: Vor- und Nachnamen, Adresse, Mail und Telefonnummer mit.
Seit einigen Jahren gilt in Deutschland das Geldwäschegesetz. Nach diesem Gesetz ist jedes Immobilienbüro verpflichtet, bei Kontaktaufnahme die Identität des Kunden...
Anbieter der Immobilie
Leo Wacker Immobilien
Gleditschstr. 66, 10781 Berlin

Online-ID: 2jb9t5x
Referenznummer: 80 2
Finde Angebote wie dieses
Hier geht es zu unserem Impressum, den Allgemeinen Geschäftsbedingungen, den Hinweisen zum Datenschutz und nutzungsbasierter Online-Werbung.