

Maymar Real estate
Frau Yvette Boerner
003 ···
Nr. anzeigenPreise & Kosten
Provision für Käufer
provisionsfrei
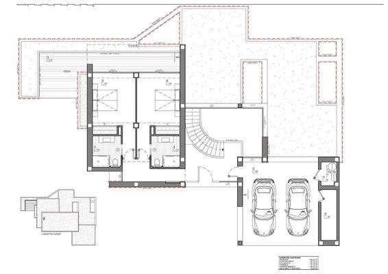
Das Haus
Kategorie
Villa
Baujahr
2024
Details
Weitere Informationen
NEU GEBAUTE LUXUSVILLA
NEU GEBAUTE LUXUSVILLA IN CUMBRE DEL SOL
Neubau einer kultigen Villa in Benitachell. Ihr Design aus dem 21. Jahrhundert fügt sich perfekt in die exklusive Umgebung des Residencial Cumbre del Sol ein. Es ist auf einem 1168m2 Grundstück gebaut, wo, wie die Villa nach Südwesten können Sie sehen...
Anbieter der Immobilie

Online-ID: 2jbdw5l
Referenznummer: MN200BENIT51
Finde Angebote wie dieses
Hier geht es zu unserem Impressum, den Allgemeinen Geschäftsbedingungen, den Hinweisen zum Datenschutz und nutzungsbasierter Online-Werbung.