
RPG Birich Immobilien
Frau Nelli Birich
073 ···
Nr. anzeigenPreise & Kosten
Provision für Käufer
3,50 % Käuferprovision inkl. MwSt.
Lage
Das angebotene Mehrfamilienhaus befindet sich in einer zentralen und attraktiven Lage in Krumbach (Schwaben). Die Stadt überzeugt mit einer hervorragenden Infrastruktur und bietet eine hohe Lebensqualität. In unmittelbarer Nähe befinden sich Einkaufsmöglichkeiten, Restaurants, Cafés sowie Ärzte und...
Das Haus
Kategorie
Mehrfamilienhaus
Baujahr
2022
Derzeitige Nutzung
vermietet
Energie & Heizung
Warum sehe ich diese Anzeige? – Du siehst diese Anzeige basierend auf Ihrer Navigation auf unserer Website und den Suchkriterien, die du verwendet hast.
Weitere Energiedaten
Heizungsart
Fußbodenheizung, Luft-/Wasser-Wärmepumpe
Details
Objektbeschreibung
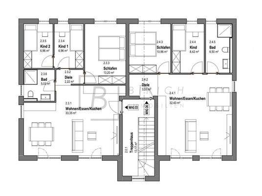
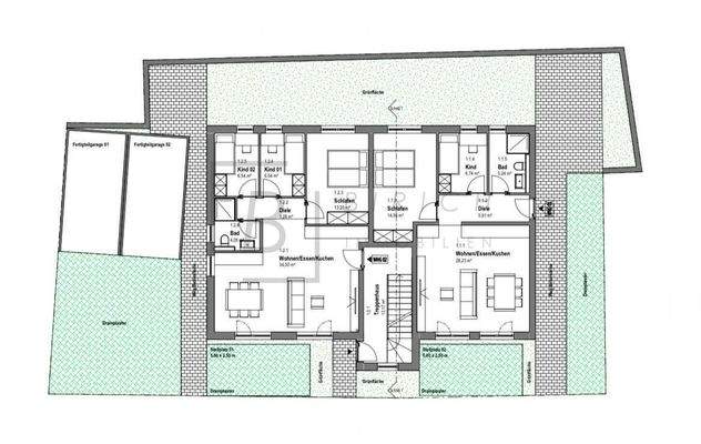
Attraktive Kapitalanlage: Modernes, vollvermietetes Mehrfamilienhaus mit 5 Einheiten in neuwertigem Zustand
Dieses hochwertige Mehrfamilienhaus wurde im Jahr 2023 fertiggestellt und umfasst fünf moderne Wohneinheiten mit einer gesamten monatlichen Kaltmieteinnahme von 5.600 €. Das Objekt befindet sich in einem neuwertigen...
Ausstattung
Investoren-Highlights auf einen Blick
+ Fünf moderne Wohneinheiten mit Wohnflächen zwischen 61 m² und 97 m²
+ Zwei Garagenstellplätze sowie drei Außenstellplätze - für jede Einheit eine Parkmöglichkeit
+ Separates Heiz- und Stromsystem für jede Wohnung - transparente Nebenkosten
+ Energieeffiziente Bauweise mit...
Preisinformation
3 Stellplätze
2 Garagenstellplätze
Weitere Informationen
Sonstiges
BIRICH Immobilien & Projekte GmbH i.G
Telefon: 07352 - 9415755
E-Mail: info@birich-immobilien.de
Adresse: Benediktusstr. 14, 88416 Ochsenhausen
www.birich-immobilien.de
Umsatzsteuer-Identifikationsnummer gemäß §27 a Umsatzsteuergesetz: DE 319754840
Berufsaufsichtsbehörde im Sinne...
Anbieter der Immobilie
RPG Birich Immobilien
Benediktusstraße 14 , 88416 Ochsenhausen
Online-ID: 2jc485z
Referenznummer: B0010402
Finde Angebote wie dieses
Hier geht es zu unserem Impressum, den Allgemeinen Geschäftsbedingungen, den Hinweisen zum Datenschutz und nutzungsbasierter Online-Werbung.