Fortuna Real GmbH

Herr Patrick Eigner

***Wohntraum direkt am Steinbach***

€ 489.000
Kaufpreis
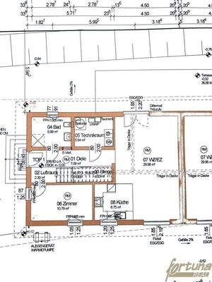
105 m²
Wohnfläche ca.
3
Zimmer
300 m²
Grundstücksfl. ca.
Finanzierung berechnen mit durchblicker

Der Anbieter dieses Objekts hat gegenüber der AVIV Germany GmbH als Betreiber dieses Online-Marktplatzes erklärt, nicht als Unternehmer im Sinne des § 1 KSchG zu handeln. Die im Verbraucherschutzrecht der Union verankerten Verbraucherrechte (insbesondere Informationspflichten und Rücktritts- bzw. Widerrufsrechte) finden auf den Vertrag zwischen dem Anbieter des Objekts und Ihnen (dem Interessenten) keine Anwendung.

Gewerblicher Anbieter

Der Anbieter dieses Objekts hat gegenüber der AVIV Germany GmbH als Betreiber dieses Online-Marktplatzes erklärt, als Unternehmer im Sinne des § 1 KSchG zu handeln.

AdresseStraße nicht freigegeben
3001 Mauerbach 
Auf Karte ansehen

Preise & Kosten

Kaufpreis € 489.000

Provision für Käufer

3% des Kaufpreises zzgl. 20% USt.

Lage

- Ruhige Wohngegend
- Umgeben von Wäldern und Grünflächen
- Umschlossen vom Steinbach
- In der Nähe von Freizeitmöglichkeiten wie Wander- und Radwege, Tennisplatz, Schwimmbad, Spielplatz
- Lage in einer beliebten Wohngegend mit guter Infrastruktur

Das Haus

Kategorie

Doppelhaushälfte

Baujahr

2024

Bezug

sofort

  • Zustand: Erstbezug, Neubau
  • Terrasse
  • 2 Stellplätze
  • Bad mit Fenster, Wanne und Dusche
  • Böden: Estrich
  • Weitere Räume: Abstellraum

Energie & Heizung

Heizwärmebedarf (HWB)

B

45,00 kWh/(m²·a)

Gesamtenergieeffizienz (fGEE)

A+

0,81

Weitere Energiedaten

Haustyp

Holzhaus

Heizungsart

Fußbodenheizung, Luft-/Wasser-Wärmepumpe

Details

Objektbeschreibung

!!NUTZEN SIE DIESE CHANCE!!

 

 

HIGHLIGHTS:

*  Natur, so weit das Auge reicht
*  Doppelhaushälfte mit umfangreichen Möglichkeiten
*  Umgeben von Bäumen
*  Direkter Zugang zum Steinbach  
*  Genug Platz für eine große...

Mehr anzeigen

Preisinformation

2 Stellplätze

Weitere Informationen

Stichworte
Stellplatz vorhanden, Ost-Balkon/Terrasse, Anzahl der Badezimmer: 1, Anzahl der separaten WCs: 2, Anzahl Terrassen: 1, Bundesland: Niederösterreich, 2 Etagen

Anbieter der Immobilie

Partner

Fortuna Real GmbH

Rathausplatz 14, 2000 STOCKERAU

user

Herr Patrick Eigner

Dein Ansprechpartner

Anbieter-Profil Anbieter-Impressum

Online-ID: 2jc5m5v

Referenznummer: OBGC202505031112309062814042fb7

Finde Angebote wie dieses

imageimageimage

Günstige Immobilienfinanzierung einfach online berechnen

Persönliches Angebot berechnen

Hier geht es zu unserem Impressum, den Allgemeinen Geschäftsbedingungen, den Hinweisen zum Datenschutz und nutzungsbasierter Online-Werbung.