

DAHLER & COMPANY Alstertal GmbH & Co. KG
Firma DAHLER Hamburg Alstertal
040 ···
Nr. anzeigenPreise & Kosten
Provision für Käufer
3,57% inkl. gesetzl. MwSt. Käuferprovision bezogen auf den Kaufpreis
Lage
Die angebotene Villa befindet sich in einer der Adresslagen des begehrten Hamburger Stadtteils - Wohldorf-Ohlstedt. Die Nachbarschaft zeichnet sich durch eine gepflegte Villen- und Einfamilienhausbebauung auf großzügigen Grundstücken aus. Der dörfliche Charakter ist trotz der gut entwickelten Infrastruktur nicht verloren...
Das Haus
Kategorie
Villa
Baujahr
1907
Energie & Heizung
Warum sehe ich diese Anzeige? – Du siehst diese Anzeige basierend auf Ihrer Navigation auf unserer Website und den Suchkriterien, die du verwendet hast.
Energieausweistyp
Bedarfsausweis
Gebäudetyp
Wohngebäude
Baujahr laut Energieausweis
1907
Wesentliche Energieträger
GAS
Gültigkeit
bis 21.11.2034
Effizienzklasse
F
Endenergiebedarf
171,90 kWh/(m²·a)
Weitere Energiedaten
Haustyp
Massivhaus
Energieträger
Gas
Heizungsart
offener Kamin, Zentralheizung
Details
Objektbeschreibung
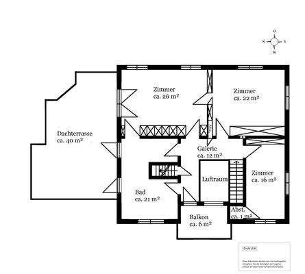
Diese in ihrer Art und vom Erhaltungszustand außergewöhnliche Rotklinker Kaffeemühle wurde von dem Architekten Fritz Höger entworfen und 1907 in massiver Bauweise mit Vollkeller errichtet. 1990 wurde die Villa aufwändig und stilgerecht saniert sowie gleichzeitig das Dachgeschoss sowie der Spitzboden ausgebaut. Zu den...
Ausstattung
* originale Stilelemente, wie z. B. ca. 2,20 m hohe profilierte Vollholztüren, handgearbeiteter Handlauf im Treppenhaus, hochwertige Tischlereinbauten
* hohe Decken im gesamten Haus
* Bodenbeläge aus keramischen Fliesen und hochwertiger Teppichware
* unter dem Teppich im Erdgeschoss ist Fischgrät-Eichenparkett...
Preisinformation
1 Carportplatz
1 Garagenstellplatz
Weitere Informationen
Sonstiges
Die vom Käufer im Falle eines Ankaufs an die DAHLER & COMPANY Alstertal GmbH & Co. KG zu zahlende Provision beträgt 3,57 % inkl. der gesetzl. MwSt. bezogen auf den Kaufpreis.
Stichworte
Carport vorhanden, Anzahl Terrassen: 1
Sonstiges/Wohnen: Dachboden
Anbieter der Immobilie

Online-ID: 2jd5b5s
Referenznummer: DC-HAR35029
Finde Angebote wie dieses
Hier geht es zu unserem Impressum, den Allgemeinen Geschäftsbedingungen, den Hinweisen zum Datenschutz und nutzungsbasierter Online-Werbung.