Als modernen Klassiker könnte man dieses 1,5-geschossige Fertighaus bezeichnen. Mit seinem zeitlos schönen Satteldach, das von einem Zwerchgiebel durchbrochen wird, den großen Dachüberständen "Modern Landhaus" und der weißen Putzfassade passt es besonders gut in das ländliche Umfeld. Schöne Akzente setzen die farbigen Fassadenflächen - bei diesem Planungsbeispiel ein warmes Hellbraun. Blickfang ist der XXL-Erker mit aufgesetztem Balkon, der von einer eleganten Glasbrüstung eingefasst wird.
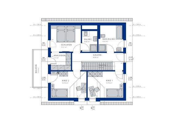
Der Hauseingang befindet sich auf der Giebelseite. Im Innern werden die Bewohner und Besucher von einer großzügigen Diele empfangen. Links schließt sich ein flexibel nutzbarer Raum an, der beispielsweise als Büro eingerichtet werden kann. Oder wie wäre es stattdessen mit einem eigenen Fitnessraum, in dem es sich wie ein Profi trainieren lässt? Den eigenen Wohnideen und Vorstellungen sind in diesem Familienhaus praktisch keine Grenzen gesetzt! Rechts der Diele liegt der Technikraum, der neben der energieeffizienten Heizungsanlage auch die Waschmaschine und den Wäschetrockner beherbergen kann. So bleibt das Badezimmer im Dachgeschoss frei für die schönen Dinge des Lebens: Wellness und Entspannung. Für Jacken, Taschen und Schuhe steht eine separate Garderobe bereit, an die dezent das Gäste-WC angrenzt. Nachdem man seine Sachen abgelegt und sich kurz frisch gemacht hat, geht es weiter in den kombinierten Wohn-, Ess- und Kochbereich. Schon beim Betreten fällt der Blick durch die großzügigen Fensterflächen hinaus auf die Terrasse und in den Garten. Der luftige Platz im Erker ist wie geschaffen für einen großen Esstisch, an dem die gesamte Familie gern zusammenkommt. Im Dachgeschoss stehen die Zeichen ganz auf Ruhe und Entspannung. Zwei Kinderzimmer - eines davon mit Zugang zum Balkon -, ein Elternschlafraum mit geräumiger Ankleide, das Familienbad und ein separates Kinderbad mit Dusche lassen Familienträume wahr werden
Merkmale
1.002 m² Grundstück
Kein Keller
als EFFIZIENZHAUS 40 PLUS mit QNG Förderung Wohlfühlklimaheizung - Wärmepumpe inkl. Lüftung, Wärmerückgewinnung und Feuchtigkeitsregulierung
Ausbaustufe fast SCHLÜSSELFERTIG
Grundrisse
Grundrisse
1 / 2
Realisiere Dein Projekt
Bausubstanz und Energie
Der Anbieter hat keine Informationen zu Energieverbrauch oder Zustand der Immobilie bereit gestellt.
Preisdetails
Kaufpreis
771984 €771.984 €
5.324,03 €/m²
Provision für Käufer
provisionsfrei
Geschätzte Gesamtkosten
814.443 €1
Kaufpreis
771.984 €
Kaufnebenkosten
42.459 €
2
Notarkosten (1,5%)
11.580 €
Grunderwerbsteuer (3,5%)
27.019 €
Grundbucheintrag (0,5%)
3.860 €
1Der angezeigte Wert ist eine automatisch berechnete Schätzung von immowelt.
2Bei den Angaben handelt es sich um ortsübliche Werte. Individuelle Kosten können abweichen.
Lage
Brunn (90475)
Der Anbieter hat die genaue Adresse nicht freigegeben
in ruhiger Lage
Weitere Informationen
Sonstiges
Bien-Zenker-Musterhaus Terminvereinbarung unter Tel. 09135/7273902 oder 0151/14982218
[URL="http://www.sandy-prskal.com"]HPSP[/URL]
Stichworte
2 Etagen, Lage im Wohngebiet