

jn Deutscher Immobilien GmbH
Herr Torsten Jungfer
035 ···
Nr. anzeigenPreise & Kosten
Verhandlungsbasis
Provision für Käufer
3,57 % vom Kaufpreis inkl. MwSt.
Lage
Riesa ist eine Stadt mit ca. 29.000 Einwohnern im Bundesland Sachsen. Die Stadt profitiert von seiner verkehrsgünstigen Lage zwischen den Großstädten Dresden und Leipzig (Bundesstraßen 6, 169, 182, Anschluss Intercity, Regionalflughafen, Elbehafen). Durch die land-schaftliche, schöne Lage an den Elbniederungen und die...
Das Renditeobjekt
Kategorie
Wohn- und Geschäftshaus
Baujahr
1889
Bezug
nach Kaufpreiszahlung
Frei ab
vermietet
Geschosse
5 Geschosse
Energie & Heizung
Warum sehe ich diese Anzeige? – Du siehst diese Anzeige basierend auf Ihrer Navigation auf unserer Website und den Suchkriterien, die du verwendet hast.
Energieausweistyp
Verbrauchsausweis
Gebäudetyp
Wohngebäude
Baujahr laut Energieausweis
1994
Wesentliche Energieträger
Erdgas
Effizienzklasse
D
Endenergieverbrauch
119,10 kWh/(m²·a) - Warmwasser enthalten
Weitere Energiedaten
Energieträger
Gas
Heizungsart
Zentralheizung
Details
Objektbeschreibung
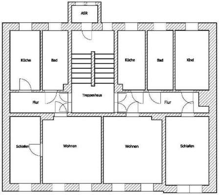
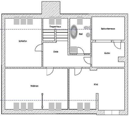
Beim Verkaufsobjekt handelt es sich um ein bürgerliches Wohn- und Geschäftshaus mit Nebengebäude in zentraler Lage von Riesa. Das 4 ½ - geschossige, voll unterkellerte Gebäude besitzt eine Gesamtmietfläche von 609,60 m². Diese wurde in eine Gewerbeeinheit von 215,60 m² im Erdgeschoss und Nebengebäude, sowie 5 Wohnungen...
Weitere Informationen
Besichtigungstermine
Sie möchten gern einen Blick in das Haus werfen? Dann gleich unverbindlich einen Besichtigungstermin per Mail vereinbaren. Wir beraten Sie gern.
Irrtum und Zwischenverwertung vorbehalten. Über die Angaben des Verkäufers übernehmen wir keine Gewähr
Anbieter der Immobilie

Online-ID: 2jd835n
Referenznummer: WGH 58022025
Finde Angebote wie dieses
Hier geht es zu unserem Impressum, den Allgemeinen Geschäftsbedingungen, den Hinweisen zum Datenschutz und nutzungsbasierter Online-Werbung.