Immobilienservice Martina Frey

Frau Martina Frey

4 Zimmer-Maisonette Wohnung in Bühl

€ 940
Kaltmiete zzgl. NK
94 m²
Wohnfläche ca.
4
Zimmer

Der Anbieter dieses Objekts hat gegenüber der AVIV Germany GmbH als Betreiber dieses Online-Marktplatzes erklärt, nicht als Unternehmer im Sinne des § 1 KSchG zu handeln. Die im Verbraucherschutzrecht der Union verankerten Verbraucherrechte (insbesondere Informationspflichten und Rücktritts- bzw. Widerrufsrechte) finden auf den Vertrag zwischen dem Anbieter des Objekts und Ihnen (dem Interessenten) keine Anwendung.

Gewerblicher Anbieter

Der Anbieter dieses Objekts hat gegenüber der AVIV Germany GmbH als Betreiber dieses Online-Marktplatzes erklärt, als Unternehmer im Sinne des § 1 KSchG zu handeln.

AdresseStraße nicht freigegeben
77815 Bühl 
(Stadtgebiet)
Auf Karte ansehen

Preise & Kosten

Kaltmiete € 940 Nebenkosten € 140 Heizkosten

nicht in Nebenkosten enthalten

€ 250
1 Stellplatz € 50

Kaution

2.820,00 € (3 Monatskaltmieten)

Lage

Karlsruher Str. 9 in 77815 Bühl

Die Wohnung

Kategorie

Maisonette

Bezug

01.03.2026

  • Bad mit Fenster, Wanne und Dusche, Gäste-WC
  • Balkon
  • Böden: Laminat, Linoleum
  • Fenster: Kunststofffenster
  • Zustand: gepflegt
  • Weitere Räume: Kelleranteil, Abstellraum, Wasch-Trockenraum
  • Anschlüsse: Kabelanschluss

Wohnanlage

  • Baujahr: 1995
  • 1 Stellplatz: Tiefgarage

Energie & Heizung

A+
A
B
C
D
E
F
G
H
0 25 50 75 100 125 150 175 200 225 250 +

Energieausweistyp

Verbrauchsausweis

Gebäudetyp

Wohngebäude

Baujahr laut Energieausweis

1995

Wesentliche Energieträger

Gas

Gültigkeit

28.03.2018 bis 28.03.2028

Effizienzklasse

C

Endenergieverbrauch

94,00 kWh/(m²·a)

Weitere Energiedaten

Heizungsart

Zentralheizung

Details

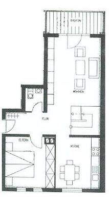
Objektbeschreibung

Wohnung über 2 Etagen
- ca. 94 m² Wohnfäche über 2 Etagen (2. OG + DG)
- untere Etage: Küche, Wohnen, Schlafzimmer, Gäste-WC, Balkon
- obere Etage: Bad mit Wanne und Dusche, 2 Schlafzimmer, gr. Abstellraum
Die Wohnung ist hell und freundlich und wird unrenoviert übergeben. Eine Einbauküche gehört nicht zur Wohnung...

Mehr anzeigen

Weitere Informationen

siehe Grundriss

Anbieter der Immobilie

Immobilienservice Martina Frey

Stollhofener Str. 5, 77839 Lichtenau

user

Frau Martina Frey

Dein Ansprechpartner

Anbieter-Profil Anbieter-Impressum

Online-ID: 2jdkz4h

Referenznummer: 153 - 9

Finde Angebote wie dieses

imageimageimage

Hier geht es zu unserem Impressum, den Allgemeinen Geschäftsbedingungen, den Hinweisen zum Datenschutz und nutzungsbasierter Online-Werbung.